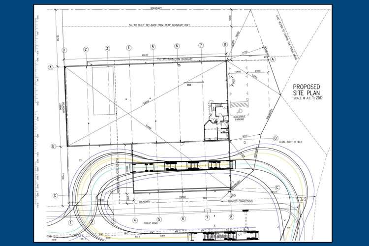
This 3,292m² site at ‘The Poplars’ business park is perfectly positioned. Being directly aligned with a right-of-way gives this site unique potential for separate B-train drive-on/drive-off access if required, while maintaining a large building footprint. Use of the ROW for this purpose is included on the title.
The Poplars is one of the Wairarapa’s newest and smartest industrial developments. Located on the busy Masterton bypass route only a few minutes from the centre of town, The Poplars is already seeing plenty of exciting activity.
Price by negotiation.
Further information including site-specific detailed building plans are available on request.
** Boundary lines are indicative only