- 24 Papawai Road


+43
Pictures43
Map
Video & 3D tour1
Data
Property insights
OneRoof estimate
OneRoof mentions
Listed for sale on OneRoof for 48 days (last updated on 24 February) and was last sold in 2009 for $400,000. OneRoof now estimates this property to be $765,000 and its latest rating valuation by South Wairarapa council is $780,000 as of 2023. This property has appeared in 1731 searches in the last 30 days. There are 30 3-bedroom properties for sale nearby. There are 105 properties for sale in Greytown.
Property data
On OneRoof
48 days
Property Type
Lifestyle Section
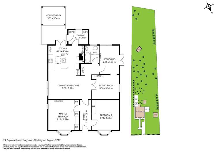
Floor Area
117m²
Land Area
3,919m²
About the area
Market insights
Insights for all bedroom homes in Greytown
Property type
All property types
Bedrooms
All
Time (yrs)
5 yrs
Home services
Fortnightly Repayments
Loan term
Total interest
Interest rate
Total cost
Press calculate to work out your mortgage repayments and how quickly you can pay off your loan.


On your side with these great benefits
Natural disaster cover for earthquakes, natural landslips, hydrothermal activity, tsunami, natural fires, & volcanic activity.
Temporary accommodation for you, your family, and your pets if you need to be evacuated from your home.
Get replacement keys and locks if yours get lost or stolen and pay no excess.
Access to AMI HomeHub, our first-class home repairer that brings together a team of experts to take care of your home claim repairs from start to finish.
Learn about these great benefits and more
*Exclusions and limitations apply. Talk to us about these or refer to the full policy document which can be found on our website.

Greytown, South Wairarapa
Greytown is a suburb which lies within the Territorial Authority of South Wairarapa, one of 9 residential suburbs which form the wider region. Greytown is the largest suburb of South Wairarapa in terms of the total number of residential housing stock.
Greytown provides a range of housing stock, with the earliest residential housing recorded in the area constructed between 1880 - 1889. The majority of the residential housing stock in the locality was constructed between 2000 - 2009.
Residential housing stock in Greytown is made up of approximately 81% residential housing , 3% residential investment housing and 16% lifestyle properties.
Learn moreADVERTISEMENT













































