- 96 Harrison Street East

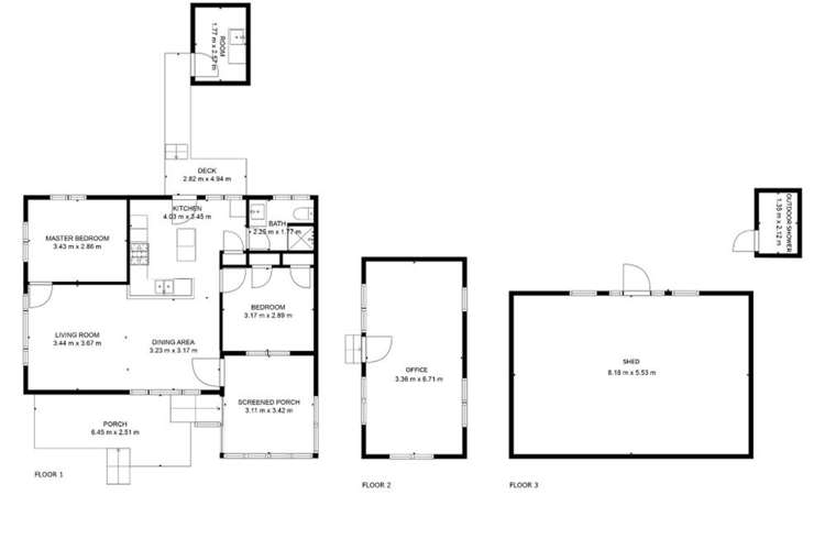
Floorplan

+27
Pictures27
Floorplan1
Map
Data
Property insights
OneRoof estimate
Interested in South Wairarapa?
Find estimateOneRoof mentions
Listed for sale on OneRoof for 95 days (last updated on 3 February). This property has appeared in 494 searches in the last 30 days. There are 4 2-bedroom properties for sale nearby. There are 56 properties for sale in Featherston.
Similar properties for sale
Market insights
Insights for all bedroom homes in Featherston
Property type
All property types
Bedrooms
All
Time (yrs)
5 yrs
Home services
Fortnightly Repayments
Loan term
Total interest
Interest rate
Total cost
Press calculate to work out your mortgage repayments and how quickly you can pay off your loan.


On your side with these great benefits
Natural disaster cover for earthquakes, natural landslips, hydrothermal activity, tsunami, natural fires, & volcanic activity.
Temporary accommodation for you, your family, and your pets if you need to be evacuated from your home.
Get replacement keys and locks if yours get lost or stolen and pay no excess.
Access to AMI HomeHub, our first-class home repairer that brings together a team of experts to take care of your home claim repairs from start to finish.
Learn about these great benefits and more
*Exclusions and limitations apply. Talk to us about these or refer to the full policy document which can be found on our website.

Featherston, South Wairarapa
Featherston is a suburb which lies within the Territorial Authority of South Wairarapa, one of 9 residential suburbs which form the wider region. Featherston is the 3rd largest suburb of South Wairarapa in terms of the total number of residential housing stock.
Featherston provides a range of housing stock, with the earliest residential housing recorded in the area constructed between 1880 - 1889. The majority of the residential housing stock in the locality was constructed between 1960 - 1969.
Residential housing stock in Featherston is made up of approximately 85% residential housing , 3% residential investment housing and 13% lifestyle properties.
Learn moreADVERTISEMENT


































