- 3236 State Highway 2


+23
Pictures23
Map
Data
Property insights
OneRoof estimate
OneRoof mentions
Listed for sale on OneRoof for 260 days (last updated on 30 May) and was last sold in 2021 for $1,311,000. OneRoof now estimates this property to be $1,095,000 and its latest rating valuation by Carterton council is $1,080,000 as of 2023. There are 32 4-bedroom properties for sale nearby. There are 163 properties for sale in Clareville.
Similar properties for sale
Property data
Time On OneRoof
259 days
Type of title
Freehold
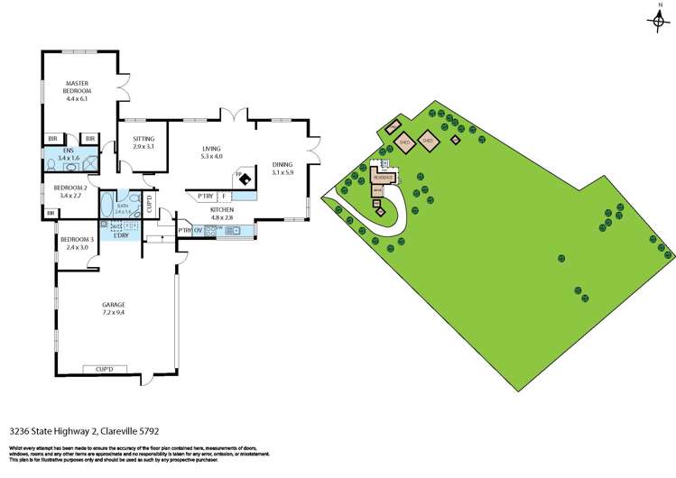
Floor area
193m²
Land area
3.24ha
About the area
Market insights
Insights for all bedroom homes in Clareville
Property type
All property types
Bedrooms
All
Time (yrs)
5 yrs
Home services
Fortnightly Repayments
Loan term
Total interest
Interest rate
Total cost
Press calculate to work out your mortgage repayments and how quickly you can pay off your loan.


On your side with these great benefits
Natural disaster cover for earthquakes, natural landslips, hydrothermal activity, tsunami, natural fires, & volcanic activity.
Temporary accommodation for you, your family, and your pets if you need to be evacuated from your home.
Get replacement keys and locks if yours get lost or stolen and pay no excess.
Access to AMI HomeHub, our first-class home repairer that brings together a team of experts to take care of your home claim repairs from start to finish.
Learn about these great benefits and more
*Exclusions and limitations apply. Talk to us about these or refer to the full policy document which can be found on our website.

Carterton, Carterton
Carterton is a suburb which lies within the Territorial Authority of Carterton, one of 5 residential suburbs which form the wider region. Carterton is the largest suburb of Carterton in terms of the total number of residential housing stock.
Carterton provides a range of housing stock, with the earliest residential housing recorded in the area constructed between 1880 - 1889. The majority of the residential housing stock in the locality was constructed between 2010 - 2019.
Residential housing stock in Carterton is made up of approximately 72% residential housing , 2% residential investment housing and 26% lifestyle properties.
Learn moreADVERTISEMENT





































