- 99a Highbrook Way


+35
Pictures
Map
99a Highbrook Way, Whatawhata, Waikato
Property insights
Rating valuation
OneRoof mentions
This property was last sold in 2024 for $2,045,000. Its latest rating valuation by Waikato council is $1,990,000 as of 2023. There are 13 properties for sale nearby. More property estimates in Whatawhata are available.
Similar properties for sale
Property data
Broadband available
Floor area
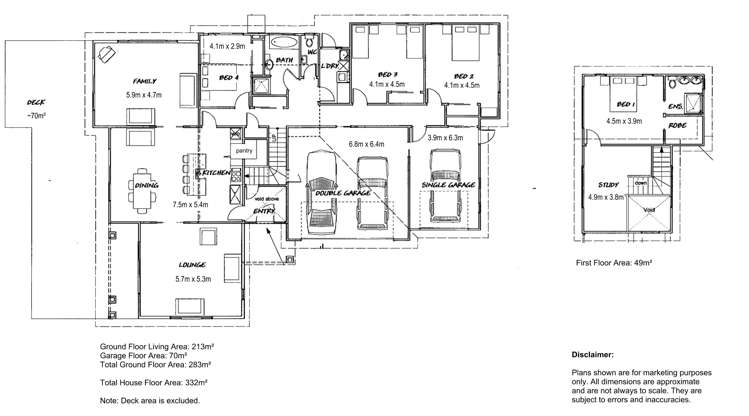
283m²
Land area
1.18ha
Type of title
Freehold
ADVERTISEMENT
Get a free, no obligation appraisal from our top agents today
About the area
Market insights
Insights for all bedroom homes in Whatawhata
Property type
All property types
Bedrooms
All
Time (yrs)
5 yrs
Home services
Fortnightly Repayments
Loan term
Total interest
Interest rate
Total cost
Press calculate to work out your mortgage repayments and how quickly you can pay off your loan.


On your side with these great benefits
Natural disaster cover for earthquakes, natural landslips, hydrothermal activity, tsunami, natural fires, & volcanic activity.
Temporary accommodation for you, your family, and your pets if you need to be evacuated from your home.
Get replacement keys and locks if yours get lost or stolen and pay no excess.
Access to AMI HomeHub, our first-class home repairer that brings together a team of experts to take care of your home claim repairs from start to finish.
Learn about these great benefits and more
*Exclusions and limitations apply. Talk to us about these or refer to the full policy document which can be found on our website.

Whatawhata, Waikato
Whatawhata is a suburb which lies within the Territorial Authority of Waikato, one of 67 residential suburbs which form the wider region. Whatawhata is the 8th largest suburb of Waikato in terms of the total number of residential housing stock.
Whatawhata provides a range of housing stock, with the earliest residential housing recorded in the area constructed between 1910 - 1919. The majority of the residential housing stock in the locality was constructed between 2000 - 2009.
Residential housing stock in Whatawhata is made up of approximately 12% residential housing and 88% lifestyle properties.
Learn moreADVERTISEMENT

















































