- 1/26 Tui Street

Floorplan

+22
Pictures22
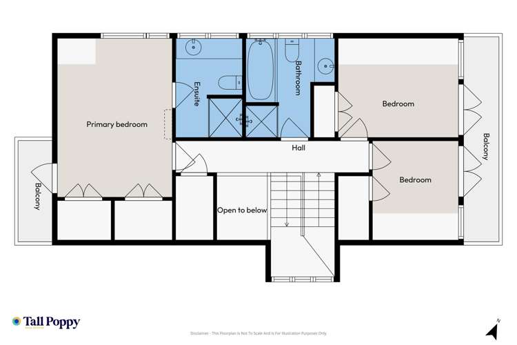
Floorplan3
Map
Data
Property insights
OneRoof estimate
OneRoof mentions
Listed for sale on OneRoof for 48 days (last updated on 12 January) and was last sold in 2018 for $580,000. OneRoof now estimates this property to be $870,000 and its latest rating valuation by Taupō council is $920,000 as of 2022. There are 29 3-bedroom properties for sale nearby. There are 76 properties for sale in Taupo.
Similar properties for sale
Property data
Time On OneRoof
47 days
Type of title
Cross-Lease
Floor area
163m²
Decade of Built
1980s
About the area
Market insights
Insights for all bedroom homes in Taupo
Property type
All property types
Bedrooms
All
Time (yrs)
5 yrs
Home services
Fortnightly Repayments
Loan term
Total interest
Interest rate
Total cost
Press calculate to work out your mortgage repayments and how quickly you can pay off your loan.


On your side with these great benefits
Natural disaster cover for earthquakes, natural landslips, hydrothermal activity, tsunami, natural fires, & volcanic activity.
Temporary accommodation for you, your family, and your pets if you need to be evacuated from your home.
Get replacement keys and locks if yours get lost or stolen and pay no excess.
Access to AMI HomeHub, our first-class home repairer that brings together a team of experts to take care of your home claim repairs from start to finish.
Learn about these great benefits and more
*Exclusions and limitations apply. Talk to us about these or refer to the full policy document which can be found on our website.

Taupō, Taupō
Taupo is a suburb which lies within the Territorial Authority of Taupo, one of 32 residential suburbs which form the wider region. Taupo is the largest suburb of Taupo in terms of the total number of residential housing stock.
Taupo provides a range of housing stock, with the earliest residential housing recorded in the area constructed between 1910 - 1919. The majority of the residential housing stock in the locality was constructed between 1960 - 1969.
Residential housing stock in Taupo is made up of approximately 95% residential housing and 5% residential investment housing properties.
Learn moreADVERTISEMENT




































