- 5 Katakata Street


+12
Pictures12
Map
Video & 3D tour1
Data
Property insights
OneRoof estimate
OneRoof mentions
Listed for sale on OneRoof for 87 days (last updated on 11 September). Its latest rating valuation by Waikato council is $430,000 as of 2023. There are 23 4-bedroom properties for sale nearby. There are 120 properties for sale in Raglan.
Similar properties for sale
Property data
Broadband available
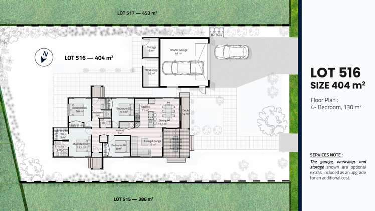
Land area
404m²
Type of title
Freehold
Contour
Easy/Moderate Fall
About the area
Market insights
Insights for all bedroom homes in Raglan
Property type
All property types
Bedrooms
All
Time (yrs)
5 yrs
Home services
Fortnightly Repayments
Loan term
Total interest
Interest rate
Total cost
Press calculate to work out your mortgage repayments and how quickly you can pay off your loan.


On your side with these great benefits
Natural disaster cover for earthquakes, natural landslips, hydrothermal activity, tsunami, natural fires, & volcanic activity.
Temporary accommodation for you, your family, and your pets if you need to be evacuated from your home.
Get replacement keys and locks if yours get lost or stolen and pay no excess.
Access to AMI HomeHub, our first-class home repairer that brings together a team of experts to take care of your home claim repairs from start to finish.
Learn about these great benefits and more
*Exclusions and limitations apply. Talk to us about these or refer to the full policy document which can be found on our website.

Raglan, Waikato
Raglan is a suburb which lies within the Territorial Authority of Waikato, one of 67 residential suburbs which form the wider region. Raglan is the 2nd largest suburb of Waikato in terms of the total number of residential housing stock.
Raglan provides a range of housing stock, with the earliest residential housing recorded in the area constructed between 1880 - 1889. The majority of the residential housing stock in the locality was constructed between 1950 - 1959.
Residential housing stock in Raglan is made up of approximately 67% residential housing , 1% residential investment housing and 32% lifestyle properties.
Learn moreADVERTISEMENT

























