- 1275 Waotu Road


+26
Pictures
Map
1275 Waotu Road, Putaruru, South Waikato
Built 1952
Property insights
Rating valuation
OneRoof mentions
Its latest rating valuation by South Waikato council is $375,000 as of 2021. There are 67 properties for sale nearby. More property estimates in Putaruru are available.
Similar properties for sale
Property data
Type of title
Freehold
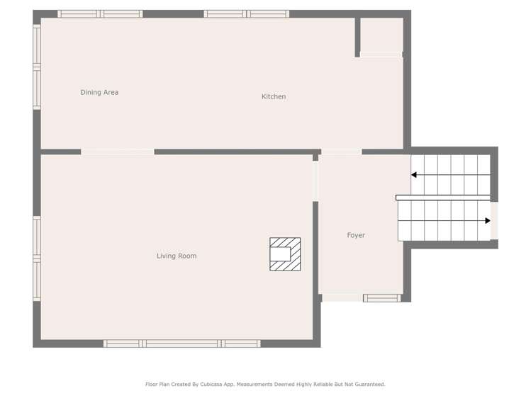
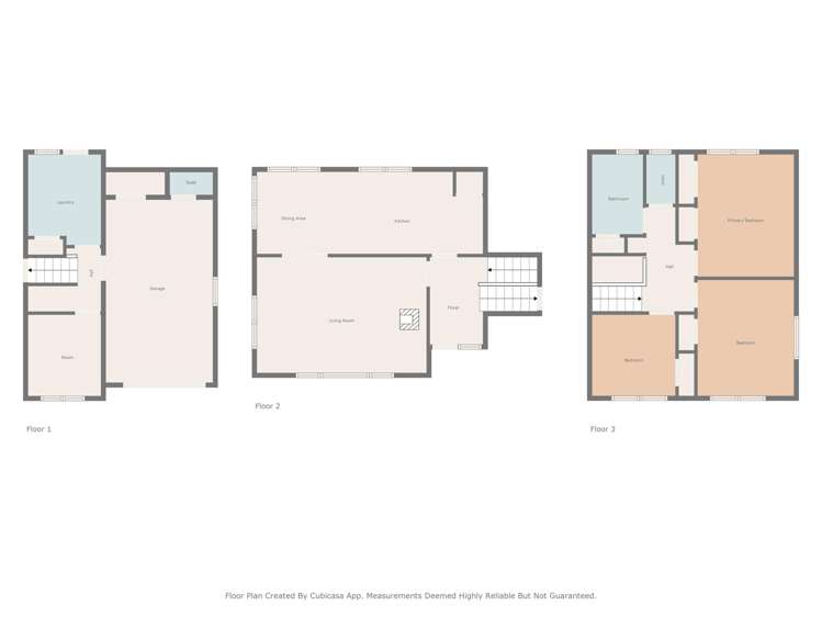
Floor area
390m²
Land area
1,416m²
Decade of Built
1950s
ADVERTISEMENT
About the area
Market insights
Insights for all bedroom homes in Putaruru
Property type
All property types
Bedrooms
All
Time (yrs)
5 yrs
Home services
Fortnightly Repayments
Loan term
Total interest
Interest rate
Total cost
Press calculate to work out your mortgage repayments and how quickly you can pay off your loan.


On your side with these great benefits
Natural disaster cover for earthquakes, natural landslips, hydrothermal activity, tsunami, natural fires, & volcanic activity.
Temporary accommodation for you, your family, and your pets if you need to be evacuated from your home.
Get replacement keys and locks if yours get lost or stolen and pay no excess.
Access to AMI HomeHub, our first-class home repairer that brings together a team of experts to take care of your home claim repairs from start to finish.
Learn about these great benefits and more
*Exclusions and limitations apply. Talk to us about these or refer to the full policy document which can be found on our website.

Putāruru, South Waikato
Putaruru is a suburb which lies within the Territorial Authority of South Waikato, one of 11 residential suburbs which form the wider region. Putaruru is the 2nd largest suburb of South Waikato in terms of the total number of residential housing stock.
Putaruru provides a range of housing stock, with the earliest residential housing recorded in the area constructed between 1900 - 1909. The majority of the residential housing stock in the locality was constructed between 1950 - 1959.
Residential housing stock in Putaruru is made up of approximately 84% residential housing , 3% residential investment housing and 13% lifestyle properties.
Learn moreADVERTISEMENT






































