- 662 Te Kawa Road


+13
Pictures13
Map
Data
Property insights
Rating valuation
Property data
Broadband available
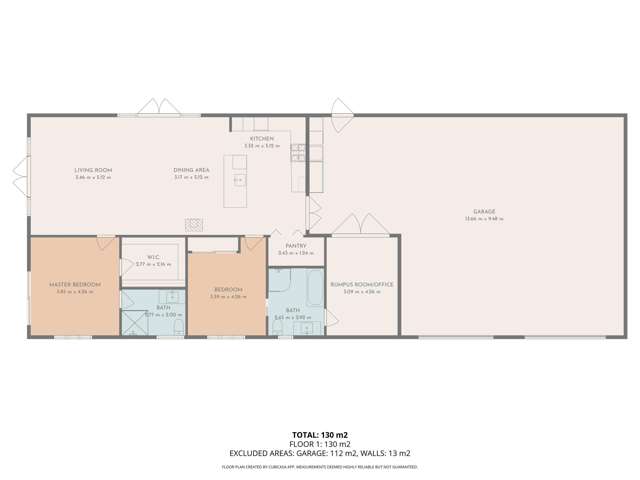
Floor area
88m²
Land area
5,663m²
Type of title
Freehold
About the area
Home services
Fortnightly Repayments
Loan term
Total interest
Interest rate
Total cost
Press calculate to work out your mortgage repayments and how quickly you can pay off your loan.


On your side with these great benefits
Natural disaster cover for earthquakes, natural landslips, hydrothermal activity, tsunami, natural fires, & volcanic activity.
Temporary accommodation for you, your family, and your pets if you need to be evacuated from your home.
Get replacement keys and locks if yours get lost or stolen and pay no excess.
Access to AMI HomeHub, our first-class home repairer that brings together a team of experts to take care of your home claim repairs from start to finish.
Learn about these great benefits and more
*Exclusions and limitations apply. Talk to us about these or refer to the full policy document which can be found on our website.

Otorohanga, Otorohanga
Otorohanga is a suburb which lies within the Territorial Authority of Otorohanga, one of 12 residential suburbs which form the wider region. Otorohanga is the largest suburb of Otorohanga in terms of the total number of residential housing stock.
Otorohanga provides a range of housing stock, with the earliest residential housing recorded in the area constructed between 1880 - 1889. The majority of the residential housing stock in the locality was constructed between 1950 - 1959.
Residential housing stock in Otorohanga is made up of approximately 58% residential housing , 3% residential investment housing and 40% lifestyle properties.
Learn moreSimilar properties for rural



















