- Room 1, 6/181 Knighton Road

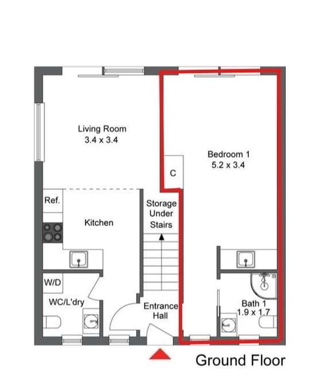
Floorplan

+8
Pictures8
Floorplan1
Map
Data
About the area

Newstead, Waikato
Newstead is a suburb which lies within the Territorial Authority of Waikato, one of 67 residential suburbs which form the wider region. Newstead is the 18th largest suburb of Waikato in terms of the total number of residential housing stock.
Newstead provides a range of housing stock, with the earliest residential housing recorded in the area constructed between 1910 - 1919. The majority of the residential housing stock in the locality was constructed between 2000 - 2009.
Residential housing stock in Newstead is made up of approximately 8% residential housing and 92% lifestyle properties.
Learn moreADVERTISEMENT










