- 17 Dame Cath Place
Last sold: Oct 2023


+21
Pictures
Map
17 Dame Cath Place, Matamata, Matamata-Piako
Last sold Oct 2023
Property insights
OneRoof estimate
OneRoof mentions
This property was last sold in 2023 for $875,000. OneRoof now estimates this property to be $890,000 and its latest rating valuation by Matamata-Piako council is $890,000 as of 2024. There are 152 properties for sale nearby. More property estimates in Matamata are available.
Similar properties for sale
Property data
Broadband available
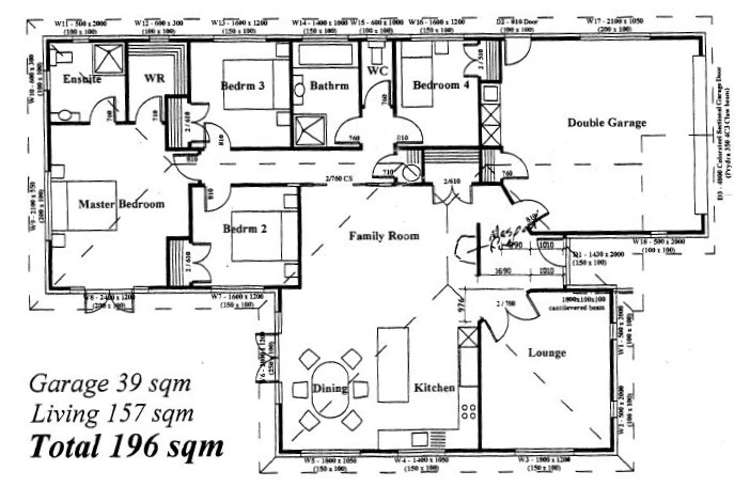
Floor area
196m²
Land area
1,041m²
Type of title
Freehold
ADVERTISEMENT
About the area
Market insights
Insights for all bedroom homes in Matamata
Property type
All property types
Bedrooms
All
Time (yrs)
5 yrs
Home services
Fortnightly Repayments
Loan term
Total interest
Interest rate
Total cost
Press calculate to work out your mortgage repayments and how quickly you can pay off your loan.


On your side with these great benefits
Natural disaster cover for earthquakes, natural landslips, hydrothermal activity, tsunami, natural fires, & volcanic activity.
Temporary accommodation for you, your family, and your pets if you need to be evacuated from your home.
Get replacement keys and locks if yours get lost or stolen and pay no excess.
Access to AMI HomeHub, our first-class home repairer that brings together a team of experts to take care of your home claim repairs from start to finish.
Learn about these great benefits and more
*Exclusions and limitations apply. Talk to us about these or refer to the full policy document which can be found on our website.

Matamata, Matamata-Piako
Matamata is a suburb which lies within the Territorial Authority of Matamata, one of 21 residential suburbs which form the wider region. Matamata is the 2nd largest suburb of Matamata in terms of the total number of residential housing stock.
Matamata provides a range of housing stock, with the earliest residential housing recorded in the area constructed between 1900 - 1909. The majority of the residential housing stock in the locality was constructed between 2000 - 2009.
Residential housing stock in Matamata is made up of approximately 85% residential housing , 1% residential investment housing and 13% lifestyle properties.
Learn moreADVERTISEMENT


































