- 29 Wilson Street
Last sold: Nov 2012


+20
Pictures
Map
29 Wilson Street, Hamilton East, Hamilton City
Last sold Nov 2012
Property insights
OneRoof estimate
OneRoof mentions
This property was last sold in 2012 for $337,000. OneRoof now estimates this property to be $735,000 and its latest rating valuation by Hamilton City council is $690,000 as of 2024. There are 82 properties for sale nearby. More property estimates in Hamilton East are available.
Similar properties for sale
Property data
Broadband available
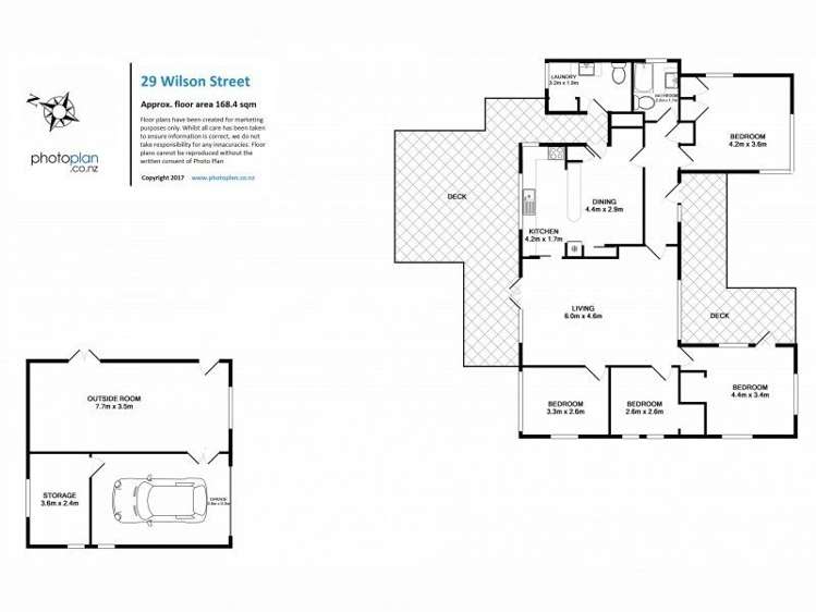
Floor area
116m²
Land area
779m²
Type of title
Freehold
ADVERTISEMENT
Get a free, no obligation appraisal from our top agents today
About the area
Market insights
Insights for all bedroom homes in Hamilton East
Property type
All property types
Bedrooms
All
Time (yrs)
5 yrs
Home services
Fortnightly Repayments
Loan term
Total interest
Interest rate
Total cost
Press calculate to work out your mortgage repayments and how quickly you can pay off your loan.


On your side with these great benefits
Natural disaster cover for earthquakes, natural landslips, hydrothermal activity, tsunami, natural fires, & volcanic activity.
Temporary accommodation for you, your family, and your pets if you need to be evacuated from your home.
Get replacement keys and locks if yours get lost or stolen and pay no excess.
Access to AMI HomeHub, our first-class home repairer that brings together a team of experts to take care of your home claim repairs from start to finish.
Learn about these great benefits and more
*Exclusions and limitations apply. Talk to us about these or refer to the full policy document which can be found on our website.

Hamilton East, Hamilton City
Hamilton East is a suburb which lies within the Territorial Authority of Hamilton, one of 51 residential suburbs which form the wider region. Hamilton East is the largest suburb of Hamilton in terms of the total number of residential housing stock.
Hamilton East provides a range of housing stock, with the earliest residential housing recorded in the area constructed between 1880 - 1889. The majority of the residential housing stock in the locality was constructed between 2000 - 2009.
Residential housing stock in Hamilton East is made up of approximately 93% residential housing and 7% residential investment housing properties.
Learn moreADVERTISEMENT


































