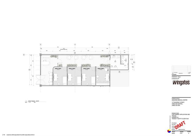
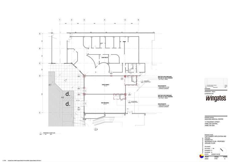
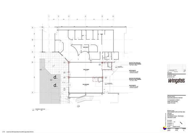
On offer is this compact 99m2 healthcare suite within the Anglesea Clinic precinct, secure your lease now off the plans enabling you to design the internal layout to meet your business needs.
Opportunities of this size within the complex are rarely available, particularly given the strong demand from medical and healthcare operators seeking to establish themselves within this tightly held location.
Positioned within close proximity to key tenants such as Midland MRI, Align Health and Hamilton Radiology, the tenancy is expected to benefit from high levels of daily foot traffic and strong surrounding occupiers.
This space is ideally suited to medical, health, or specialist service providers looking to secure a presence within a well established healthcare hub.
With limited small format options available in the market, this presents a unique chance to secure a position early, with the ability to have input into the final configuration.
We recommend registering your interest now to be kept informed as plans progress.