- 22A Pine Avenue

Floorplan

+27
Pictures27
Floorplan1
Map
Data
Property insights
OneRoof estimate
OneRoof mentions
Listed for sale on OneRoof for 52 days (last updated on 12 February). OneRoof now estimates this property to be $585,000 and its latest rating valuation by Hamilton City council is $560,000 as of 2024. This property has appeared in 6088 searches in the last 30 days. There are 7 3-bedroom properties for sale nearby. There are 12 properties for sale in Bader.
Similar properties for sale
Property data
On OneRoof
52 days
Property Type
House
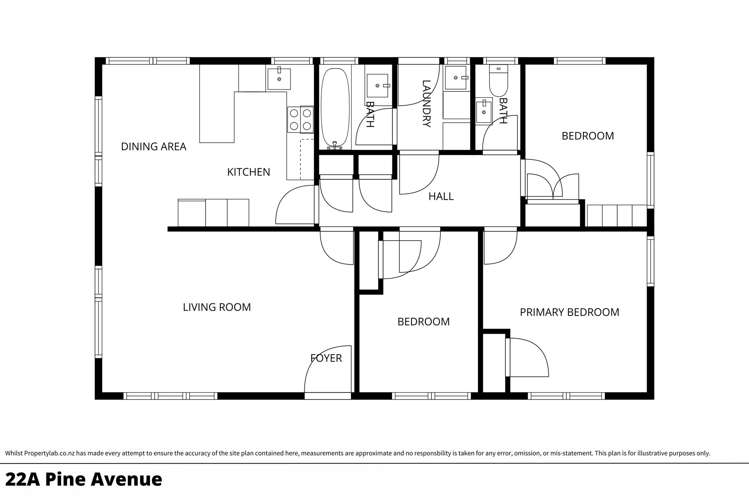
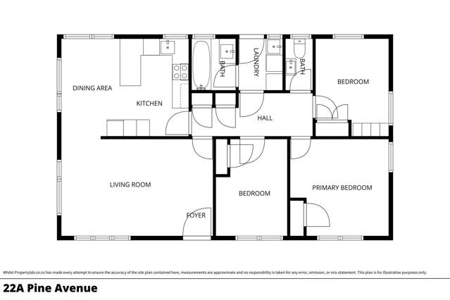
Floor Area
90m²
Land Area
408m²
About the area
Market insights
Insights for all bedroom homes in Bader
Property type
All property types
Bedrooms
All
Time (yrs)
5 yrs
Home services
Fortnightly Repayments
Loan term
Total interest
Interest rate
Total cost
Press calculate to work out your mortgage repayments and how quickly you can pay off your loan.


On your side with these great benefits
Natural disaster cover for earthquakes, natural landslips, hydrothermal activity, tsunami, natural fires, & volcanic activity.
Temporary accommodation for you, your family, and your pets if you need to be evacuated from your home.
Get replacement keys and locks if yours get lost or stolen and pay no excess.
Access to AMI HomeHub, our first-class home repairer that brings together a team of experts to take care of your home claim repairs from start to finish.
Learn about these great benefits and more
*Exclusions and limitations apply. Talk to us about these or refer to the full policy document which can be found on our website.

Bader, Hamilton City
Bader is a suburb which lies within the Territorial Authority of Hamilton, one of 51 residential suburbs which form the wider region. Bader is the 24th largest suburb of Hamilton in terms of the total number of residential housing stock.
Bader provides a range of housing stock, with the earliest residential housing recorded in the area constructed between 1910 - 1919. The majority of the residential housing stock in the locality was constructed between 1950 - 1959.
Residential housing stock in Bader is made up of approximately 94% residential housing and 6% residential investment housing properties.
Learn moreADVERTISEMENT









































