- 47 King Street
Last sold: May 2024


+26
Pictures
Map
47 King Street, Waitara, New Plymouth
Last sold May 2024
Property insights
OneRoof estimate
OneRoof mentions
This property was last sold in 2024 for $625,000. OneRoof now estimates this property to be $620,000 and its latest rating valuation by New Plymouth council is $620,000 as of 2025. There are 43 properties for sale nearby. More property estimates in Waitara are available.
Similar properties for sale
Property data
Type of title
Freehold
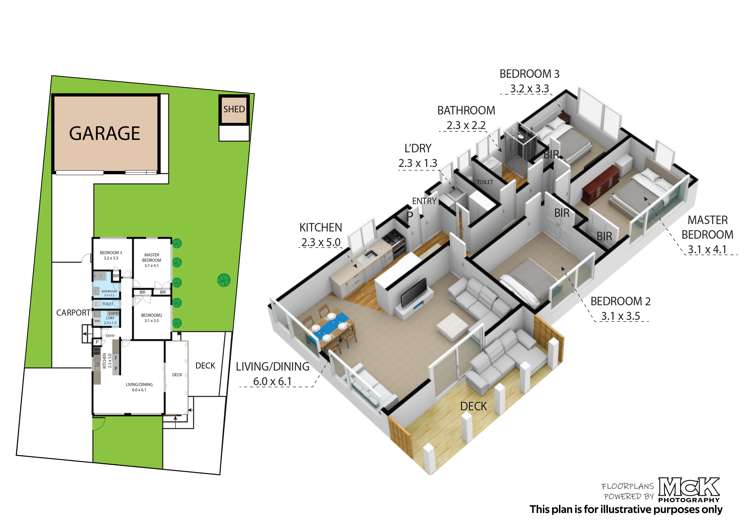
Floor area
95m²
Land area
592m²
Decade of Built
1970s
ADVERTISEMENT
About the area
Market insights
Insights for all bedroom homes in Waitara
Property type
All property types
Bedrooms
All
Time (yrs)
5 yrs
Home services
Fortnightly Repayments
Loan term
Total interest
Interest rate
Total cost
Press calculate to work out your mortgage repayments and how quickly you can pay off your loan.


On your side with these great benefits
Natural disaster cover for earthquakes, natural landslips, hydrothermal activity, tsunami, natural fires, & volcanic activity.
Temporary accommodation for you, your family, and your pets if you need to be evacuated from your home.
Get replacement keys and locks if yours get lost or stolen and pay no excess.
Access to AMI HomeHub, our first-class home repairer that brings together a team of experts to take care of your home claim repairs from start to finish.
Learn about these great benefits and more
*Exclusions and limitations apply. Talk to us about these or refer to the full policy document which can be found on our website.

Waitara, New Plymouth
Waitara is a suburb which lies within the Territorial Authority of New Plymouth, one of 41 residential suburbs which form the wider region. Waitara is the largest suburb of New Plymouth in terms of the total number of residential housing stock.
Waitara provides a range of housing stock, with the earliest residential housing recorded in the area constructed between 1880 - 1889. The majority of the residential housing stock in the locality was constructed between 1970 - 1979.
Residential housing stock in Waitara is made up of approximately 85% residential housing , 3% residential investment housing and 12% lifestyle properties.
Learn moreADVERTISEMENT








































