- 1057 Knapdale Road

Floorplan

+23
Pictures23
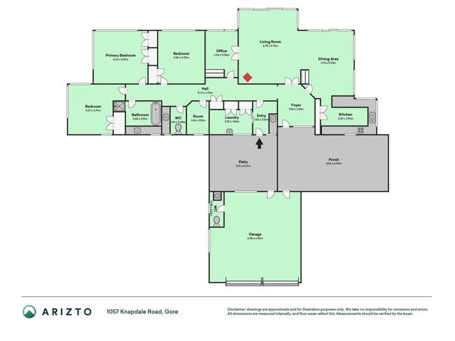
Floorplan1
Map
Video & 3D tour1
Data
Property insights
OneRoof estimate
Interested in Gore?
Find estimateOneRoof mentions
Listed for sale on OneRoof for 98 days (last updated on 21 December). There are 32 3-bedroom properties for sale nearby. There are 87 properties for sale in Gore.
Similar properties for sale
Market insights
Insights for all bedroom homes in Gore
Property type
All property types
Bedrooms
All
Time (yrs)
5 yrs
Home services
Fortnightly Repayments
Loan term
Total interest
Interest rate
Total cost
Press calculate to work out your mortgage repayments and how quickly you can pay off your loan.


On your side with these great benefits
Natural disaster cover for earthquakes, natural landslips, hydrothermal activity, tsunami, natural fires, & volcanic activity.
Temporary accommodation for you, your family, and your pets if you need to be evacuated from your home.
Get replacement keys and locks if yours get lost or stolen and pay no excess.
Access to AMI HomeHub, our first-class home repairer that brings together a team of experts to take care of your home claim repairs from start to finish.
Learn about these great benefits and more
*Exclusions and limitations apply. Talk to us about these or refer to the full policy document which can be found on our website.

Gore, Gore
Gore is a suburb which lies within the Territorial Authority of Gore, one of 5 residential suburbs which form the wider region. Gore is the largest suburb of Gore in terms of the total number of residential housing stock.
Gore provides a range of housing stock, with the earliest residential housing recorded in the area constructed between 1910 - 1919. The majority of the residential housing stock in the locality was constructed between 1970 - 1979.
Residential housing stock in Gore is made up of approximately 96% residential housing , 2% residential investment housing and 2% lifestyle properties.
Learn moreADVERTISEMENT



























