- 126 Doctors Point Road

Floorplan

+20
Pictures20
Floorplan1
Map
Data
Property insights
OneRoof estimate
OneRoof mentions
Listed for sale on OneRoof for 97 days (last updated on 18 February) and was last sold in 2015 for $345,000. OneRoof now estimates this property to be $710,000 and its latest rating valuation by Dunedin City council is $710,000 as of 2025. There are 5 3-bedroom properties for sale nearby. There are 11 properties for sale in Waitati.
Similar properties for sale
Property data
On OneRoof
96 days
Property Type
House
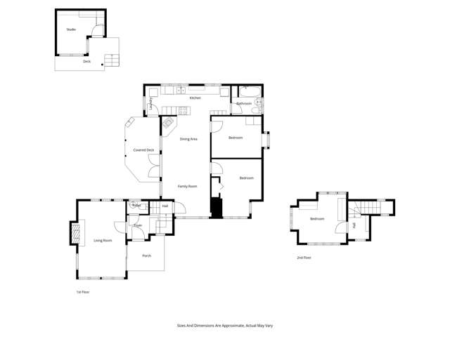
Floor Area
116m²
Land Area
1,055m²
About the area
Market insights
Insights for all bedroom homes in Waitati
Property type
All property types
Bedrooms
All
Time (yrs)
5 yrs
Home services
Fortnightly Repayments
Loan term
Total interest
Interest rate
Total cost
Press calculate to work out your mortgage repayments and how quickly you can pay off your loan.


On your side with these great benefits
Natural disaster cover for earthquakes, natural landslips, hydrothermal activity, tsunami, natural fires, & volcanic activity.
Temporary accommodation for you, your family, and your pets if you need to be evacuated from your home.
Get replacement keys and locks if yours get lost or stolen and pay no excess.
Access to AMI HomeHub, our first-class home repairer that brings together a team of experts to take care of your home claim repairs from start to finish.
Learn about these great benefits and more
*Exclusions and limitations apply. Talk to us about these or refer to the full policy document which can be found on our website.

Waitati, Dunedin City
Waitati is a suburb which lies within the Territorial Authority of Dunedin, one of 97 residential suburbs which form the wider region. Waitati is the 44th largest suburb of Dunedin in terms of the total number of residential housing stock.
Waitati provides a range of housing stock, with the earliest residential housing recorded in the area constructed between 1880 - 1889. The majority of the residential housing stock in the locality was constructed between 2000 - 2009.
Residential housing stock in Waitati is made up of approximately 79% residential housing , 2% residential investment housing and 20% lifestyle properties.
Learn moreADVERTISEMENT




























