- 3 Quarry Road

Floorplan

+28
Pictures28
Floorplan2
Map
Data
Property insights
OneRoof estimate
OneRoof mentions
Listed for sale on OneRoof for 94 days (last updated on 4 September). OneRoof now estimates this property to be $505,000 and its latest rating valuation by Dunedin City council is $435,000 as of 2025. There are 9 3-bedroom properties for sale nearby. There are 20 properties for sale in Green Island.
Similar properties for sale
Property data
Broadband available
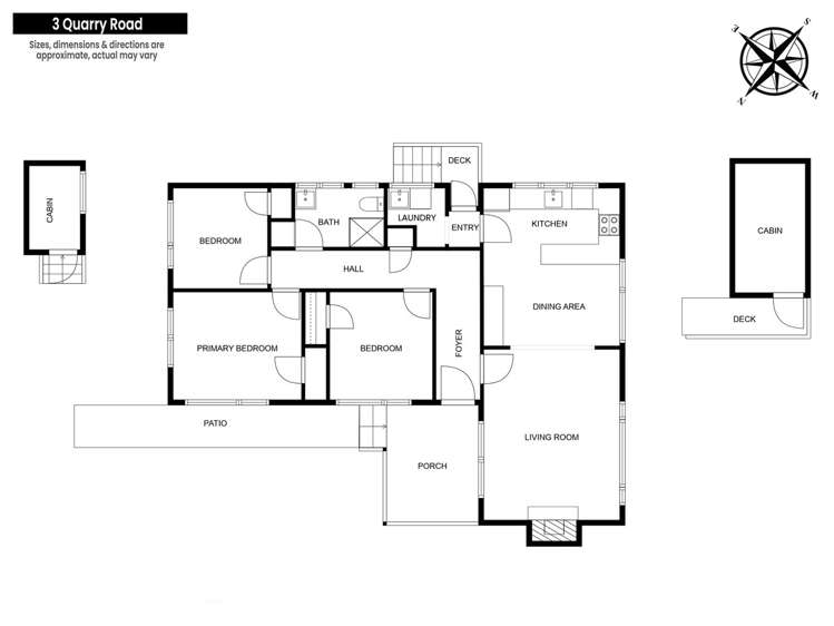
Floor area
102m²
Land area
516m²
Type of title
Freehold
About the area
Market insights
Insights for all bedroom homes in Green Island
Property type
All property types
Bedrooms
All
Time (yrs)
5 yrs
Home services
Fortnightly Repayments
Loan term
Total interest
Interest rate
Total cost
Press calculate to work out your mortgage repayments and how quickly you can pay off your loan.


On your side with these great benefits
Natural disaster cover for earthquakes, natural landslips, hydrothermal activity, tsunami, natural fires, & volcanic activity.
Temporary accommodation for you, your family, and your pets if you need to be evacuated from your home.
Get replacement keys and locks if yours get lost or stolen and pay no excess.
Access to AMI HomeHub, our first-class home repairer that brings together a team of experts to take care of your home claim repairs from start to finish.
Learn about these great benefits and more
*Exclusions and limitations apply. Talk to us about these or refer to the full policy document which can be found on our website.

Green Island, Dunedin City
Green Island is a suburb which lies within the Territorial Authority of Dunedin, one of 97 residential suburbs which form the wider region. Green Island is the 6th largest suburb of Dunedin in terms of the total number of residential housing stock.
Green Island provides a range of housing stock, with the earliest residential housing recorded in the area constructed between 1880 - 1889. The majority of the residential housing stock in the locality was constructed between 1950 - 1959.
Residential housing stock in Green Island is made up of approximately 97% residential housing , 2% residential investment housing and 1% lifestyle properties.
Learn moreADVERTISEMENT










































