Key Features:
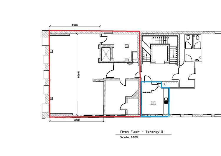
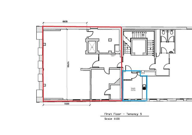
• Approx. 120sqm of professional space with abundant natural light throughout
• Flexible layout featuring expansive open-plan area with potential for boardroom configuration
• Dedicated meeting room and convenient storage solutions
• Modern amenities including heat pump and lift access
• Shared facilities - kitchen on first floor, toilets on second floor
Perfect For:
• Consulting firms, professional services, or any business seeking a premium city location with room to grow and adapt.
Building Benefits:
• Fully compliant and earthquake strengthened
• Ground floor café - perfect for client meetings or team breaks
• Secure parking available - 2 onsite parks at $50 per week each + GST
Location Advantages:
• Moray Place offers unparalleled connectivity and prestige in Dunedin's professional quarter, with excellent transport links and nearby amenities.
• $34,800 per annum (gross) + GST
Available 1st March 2026
Contact us today to arrange your private viewing.