On offer is a well-equipped hospitality tenancy in the historic Public Trust Building on Bank Street, in the heart of Whangarei.
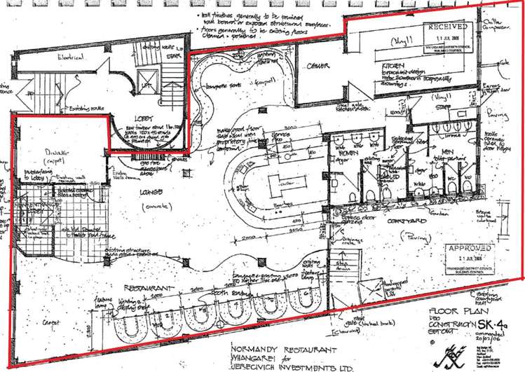
This hospitality tenancy offers that spacious feel with its majestic high ceilings and a central bar. The seating areas are a mix of built-in booths and free floorspace for regular tables and chairs.
Wheelchair access is done through a chairlift located in the courtyard to ensure you can cater to all. Male and female toilets are in a very tidy state with white tiles and a separate wheelchair access toilet.
The galley style kitchen offers a bottled gas supply and a large extractor hood and walk-in chiller. At the very rear the property has a fully fenced services yard with a gas bottle hook-up and plenty of storage for cooking oils and gear.
The total restaurant area is approx. 318 sqm and the courtyard is approx. 88 sqm. A floorplan has been made available.
It's location is one to take note of as there are several historic Whangarei buildings in this direct area, housing various long term and respected tenants. This is also right next door to the newly renovated Municipal Building which will be bustling with new high-end tenants once completed.
Contact Paul or Steve today for more information.