An exciting new office building being built here on Dent Street, just down from the Courthouse. On offer are two floors of premium office space and carparking underneath.
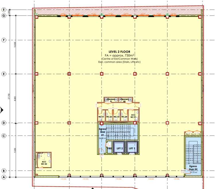
The first floor and top floor offer approx. 730 sqm with 9 undercover carparks per floor. Enquire about the option of half a floor plate.
The asking rental per floor plate is $288,350+gst and outgoings.
This location will have a commanding view of the Town Basin and enjoy a close proximity to the town center and its shops and eateries.
Call Paul or Steve today on 021 183 5165 for more information!