- 1 Glengarry Lane


+29
Pictures29
Map
Data
Property insights
OneRoof estimate
OneRoof mentions
Listed for sale on OneRoof for 9 days (last updated on 15 February) and was last sold in 2021 for $680,000. OneRoof now estimates this property to be $710,000 and its latest rating valuation by Whangārei council is $720,000 as of 2024. There are 11 3-bedroom properties for sale nearby. There are 17 properties for sale in Tamaterau.
Similar properties for sale
Property data
Time On OneRoof
8 days
Type of title
Freehold
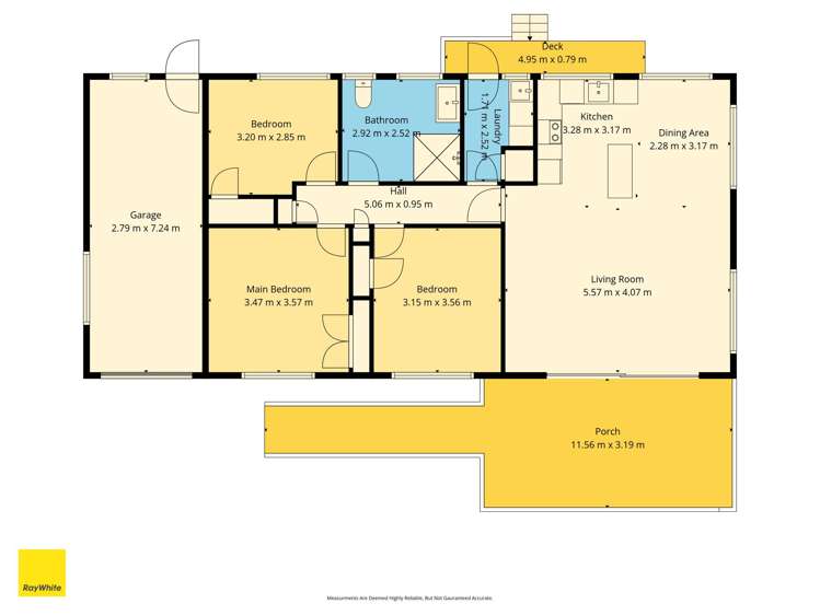
Floor area
120m²
Land area
1,097m²
About the area
Market insights
Insights for all bedroom homes in Tamaterau
Property type
All property types
Bedrooms
All
Time (yrs)
5 yrs
Home services
Fortnightly Repayments
Loan term
Total interest
Interest rate
Total cost
Press calculate to work out your mortgage repayments and how quickly you can pay off your loan.


On your side with these great benefits
Natural disaster cover for earthquakes, natural landslips, hydrothermal activity, tsunami, natural fires, & volcanic activity.
Temporary accommodation for you, your family, and your pets if you need to be evacuated from your home.
Get replacement keys and locks if yours get lost or stolen and pay no excess.
Access to AMI HomeHub, our first-class home repairer that brings together a team of experts to take care of your home claim repairs from start to finish.
Learn about these great benefits and more
*Exclusions and limitations apply. Talk to us about these or refer to the full policy document which can be found on our website.

Tamaterau, Whangārei
Tamaterau is a suburb which lies within the Territorial Authority of Whangarei, one of 52 residential suburbs which form the wider region. Tamaterau is the 28th largest suburb of Whangarei in terms of the total number of residential housing stock.
Tamaterau provides a range of housing stock, with the earliest residential housing recorded in the area constructed between 1900 - 1909. The majority of the residential housing stock in the locality was constructed between 1990 - 1999.
Residential housing stock in Tamaterau is made up of approximately 89% residential housing and 10% lifestyle properties.
Learn moreADVERTISEMENT











































