- 31 Morningside Road

Floorplan

+12
Pictures12
Floorplan1
Map
Data
Property insights
OneRoof estimate
OneRoof mentions
Listed for sale on OneRoof for 153 days (last updated on 24 November) and was last sold in 2017 for $340,000. OneRoof now estimates this property to be $485,000 and its latest rating valuation by Whangārei council is $500,000 as of 2024. There are 8 3-bedroom properties for sale nearby. There are 11 properties for sale in Morningside.
Similar properties for sale
Property data
On OneRoof
152 days
Property Type
House
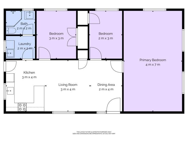
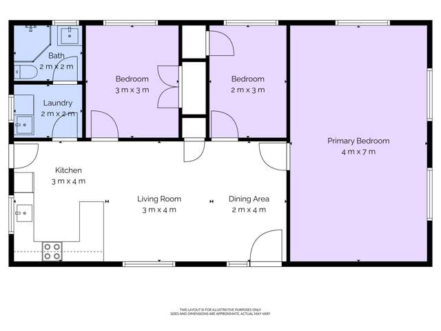
Floor Area
87m²
Land Area
528m²
About the area
Market insights
Insights for all bedroom homes in Morningside
Property type
All property types
Bedrooms
All
Time (yrs)
5 yrs
Home services
Fortnightly Repayments
Loan term
Total interest
Interest rate
Total cost
Press calculate to work out your mortgage repayments and how quickly you can pay off your loan.


On your side with these great benefits
Natural disaster cover for earthquakes, natural landslips, hydrothermal activity, tsunami, natural fires, & volcanic activity.
Temporary accommodation for you, your family, and your pets if you need to be evacuated from your home.
Get replacement keys and locks if yours get lost or stolen and pay no excess.
Access to AMI HomeHub, our first-class home repairer that brings together a team of experts to take care of your home claim repairs from start to finish.
Learn about these great benefits and more
*Exclusions and limitations apply. Talk to us about these or refer to the full policy document which can be found on our website.

Morningside, Whangārei
Morningside is a suburb which lies within the Territorial Authority of Whangarei, one of 52 residential suburbs which form the wider region. Morningside is the 13rd largest suburb of Whangarei in terms of the total number of residential housing stock.
Morningside provides a range of housing stock, with the earliest residential housing recorded in the area constructed between 1900 - 1909. The majority of the residential housing stock in the locality was constructed between 1950 - 1959.
Residential housing stock in Morningside is made up of approximately 96% residential housing and 3% residential investment housing properties.
Learn moreADVERTISEMENT


























