5 Eagle Ray Road presents an opportunity to invest in fast growing Mangawhai Central. This 1,025sqm plot of commercial zoned bare land is perfectly positioned to take advantage of the bustling activity in this rapidly growing coastal community. Flanked by renowned establishments like New World Supermarket, Mobil, and Bunnings Warehouse, your venture will enjoy unmatched exposure and access to a steady stream of customers. Your business will flourish in a location that offers both strategic convenience and a vibrant local ambiance.
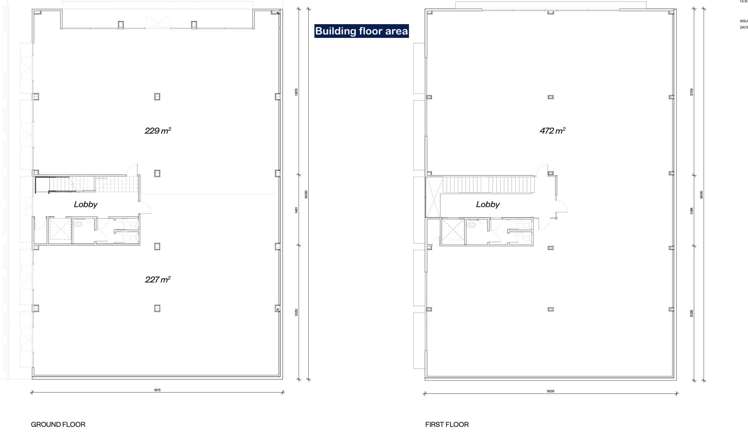
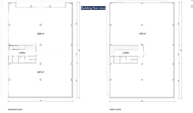
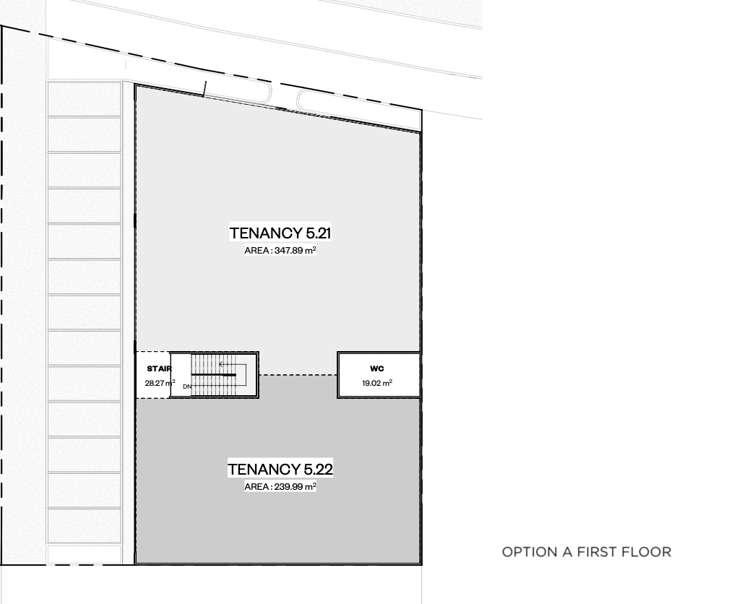
The vendors have drafted plans that allow for 1-3 tenancies of varying sizes and layouts and flexible parking options.The varied design plans allow for multiple layouts and tenancies in this prime location with floor areas ranging from 700sqm - 1,050sqm over two levels.
There is a possibility to combine 5 Eagle Ray Road with the neighbouring properties at 7 Eagle Ray Road and 5 Northbase Drive. Together, they create a substantial 3,841sqm commercial landscape, ideal for larger scale projects or diverse business endeavours.
With the ongoing development in Mangawhai Central, seize this moment to lay the foundation for a venture that stands out in a community on the rise.
For further property details visit the online data room at www.propertyfiles.co.nz/1271269