Operate your business from these modern 1st floor office premises in Kerikeri House situated on Kerikeri Road, within the heart of the Kerikeri CBD. This building is surrounded by boutique retail shops, banks and café’s, making this office premises conveniently accessible for staff and customers.
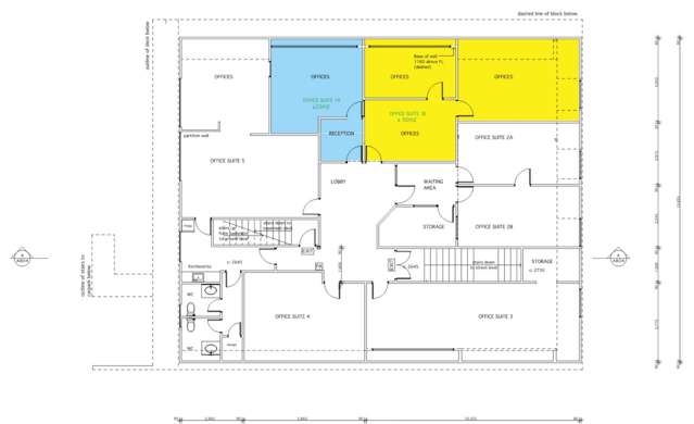
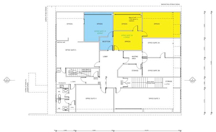
The whole space has a floor area of 73m² (approx.) and can be split into two tenancies. Split tenancies are configured as Office 1A being 23m² (approx.) and Office 1B being 50m² (approx.). These premises include shared use of the kitchen and toilet amenities. The building is beautifully decorated, and all common areas on the first floor have been renovated. These premises provide easy access for your customers at the front of the building, and the tenant carpark is conveniently located behind the building with access at the rear entrance.
With its excellent location, professional surroundings and functional layout, these office spaces are an ideal choice for businesses looking to establish themselves within the Kerikeri CBD. Enquire today to secure this opportunity!
KEY FEATURES:
• Office 1 (whole premises) Asking rent: $25,500 + GST + Outgoings pa
• Office 1 (whole premises) Floor area: 73m² (approx.)
• Office 1A (split tenancy) Asking rent: $9,775 + GST + Outgoings pa
• Office 1A Floor area: 23m² (approx.)
• Office 1B (split tenancy) Asking rent: $18,750 + GST + Outgoings pa
• Office 1B Floor area: 50m² (approx.)
• Shared toilet and kitchen amenities
• Signage at designated locations
• Excellent, central CBD location
• Surrounded by quality businesses
Viewing by appointment only.
For lease information and to view, contact us now.
See this listing on Barfoot & Thompson