- 9 Tui Street

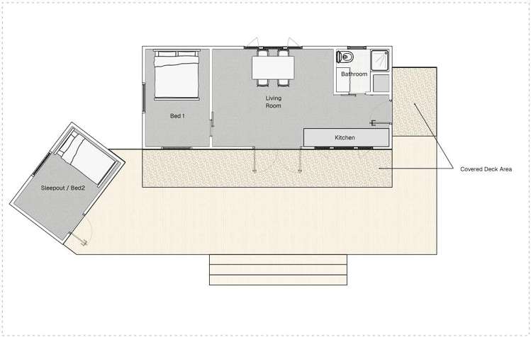
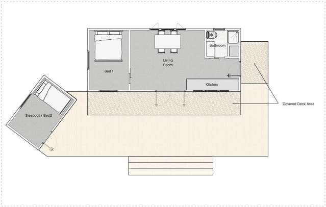
Floorplan

+40
Pictures40
Floorplan1
Map
Video & 3D tour1
Data
Property insights
OneRoof estimate
OneRoof mentions
Listed for sale on OneRoof for 282 days (last updated on 9 May) and was last sold in 2017 for $160,000. OneRoof now estimates this property to be $380,000 and its latest rating valuation by Far North council is $410,000 as of 2022. There are 2 1-bedroom properties for sale nearby. There are 21 properties for sale in Ahipara.
Property data
Time On OneRoof
281 days
Type of title
Freehold
Floor area
36m²
Land area
1,169m²
About the area
Market insights
Insights for all bedroom homes in Ahipara
Property type
All property types
Bedrooms
All
Time (yrs)
5 yrs
Home services
Fortnightly Repayments
Loan term
Total interest
Interest rate
Total cost
Press calculate to work out your mortgage repayments and how quickly you can pay off your loan.


On your side with these great benefits
Natural disaster cover for earthquakes, natural landslips, hydrothermal activity, tsunami, natural fires, & volcanic activity.
Temporary accommodation for you, your family, and your pets if you need to be evacuated from your home.
Get replacement keys and locks if yours get lost or stolen and pay no excess.
Access to AMI HomeHub, our first-class home repairer that brings together a team of experts to take care of your home claim repairs from start to finish.
Learn about these great benefits and more
*Exclusions and limitations apply. Talk to us about these or refer to the full policy document which can be found on our website.

Ahipara, Far North
Ahipara is a suburb which lies within the Territorial Authority of Far North, one of 59 residential suburbs which form the wider region. Ahipara is the 9th largest suburb of Far North in terms of the total number of residential housing stock.
Ahipara provides a range of housing stock, with the earliest residential housing recorded in the area constructed between 1880 - 1889. The majority of the residential housing stock in the locality was constructed between 2000 - 2009.
Residential housing stock in Ahipara is made up of approximately 79% residential housing , 3% residential investment housing and 19% lifestyle properties.
Learn moreADVERTISEMENT










































