- 45 Matai Crescent

Floorplan

+18
Pictures18
Floorplan1
Map
Video & 3D tour1
Data
Property insights
OneRoof estimate
OneRoof mentions
Listed for sale on OneRoof for 43 days (last updated on 1 November) and was last sold in 2024 for $480,000. OneRoof now estimates this property to be $500,000 and its latest rating valuation by Tasman council is $470,000 as of 2023. There are 12 properties for sale in Tapawera.
Property data
Broadband available
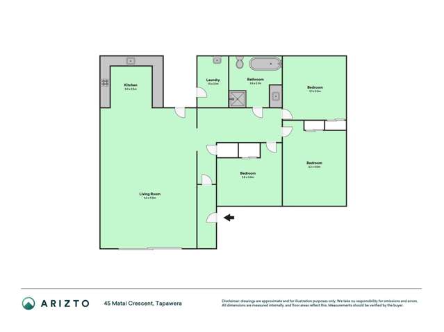
Floor area
99m²
Land area
829m²
Type of title
Freehold
About the area
Market insights
Insights for all bedroom homes in Tapawera
Property type
All property types
Bedrooms
All
Time (yrs)
5 yrs
Home services
Fortnightly Repayments
Loan term
Total interest
Interest rate
Total cost
Press calculate to work out your mortgage repayments and how quickly you can pay off your loan.


On your side with these great benefits
Natural disaster cover for earthquakes, natural landslips, hydrothermal activity, tsunami, natural fires, & volcanic activity.
Temporary accommodation for you, your family, and your pets if you need to be evacuated from your home.
Get replacement keys and locks if yours get lost or stolen and pay no excess.
Access to AMI HomeHub, our first-class home repairer that brings together a team of experts to take care of your home claim repairs from start to finish.
Learn about these great benefits and more
*Exclusions and limitations apply. Talk to us about these or refer to the full policy document which can be found on our website.

Tapawera, Tasman
Tapawera is a suburb which lies within the Territorial Authority of Tasman, one of 32 residential suburbs which form the wider region. Tapawera is the 18th largest suburb of Tasman in terms of the total number of residential housing stock.
Tapawera provides a range of housing stock, with the earliest residential housing recorded in the area constructed between 1890 - 1899. The majority of the residential housing stock in the locality was constructed between 1970 - 1979.
Residential housing stock in Tapawera is made up of approximately 52% residential housing , 1% residential investment housing and 48% lifestyle properties.
Learn moreADVERTISEMENT




















