Discover this exceptional single-level commercial property, prominently positioned on a 1,189sqm freehold site at 56 Waimea Road, Nelson. Offering around 270sqm of adaptable office space, it's currently divided into two tenancies, each with its own bathroom and staff facilities.
Ample off-street parking is provided at the rear for around 14 cars. The tenancies are serviced independently offering an opportunity to occupy one and rent out the other or combine them for a large office/retail space. One tenancy is split into a reception area, multiple offices and a boardroom with native timber floors throughout. At approximately 188 sqm this has been let for $36,000 per annum plus OPEX plus GST.
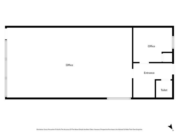
The smaller tenancy of approximately 82 sqm is split into an office, staff facilities and a large open plan space. Anticipated rental for this would be around $16,000 per annum plus OPEX plus GST.
At current rates, the parking area could generate up to an additional $10,920 ($15 each p/w) in income if apportioned to the tenancies.
With vacant possession, it's ideal for immediate occupation or redevelopment. Just a 12-minute walk from the CBD, it enjoys excellent visibility and accessibility. Energy efficiency is built in, with three heat pumps and a solar array keeping running costs low. Zoned Suburban Commercial, the property supports a variety of uses - retail, offices, medical, and more - plus potential for mixed-use development with residential above. A rare opportunity to secure a versatile, high-profile property with strong future potential.