- 11 Field Terrace

Floorplan

+29
Pictures29
Floorplan1
Map
Video & 3D tour1
Data
Property insights
OneRoof estimate
OneRoof mentions
Listed for sale on OneRoof for 71 days (last updated on 18 March) and was last sold in 2019 for $475,000. OneRoof now estimates this property to be $720,000 and its latest rating valuation by Marlborough council is $620,000 as of 2023. There are 2 3-bedroom properties for sale nearby. There are 4 properties for sale in Okiwi Bay.
Similar properties for sale
Property data
On OneRoof
70 days
Property Type
House
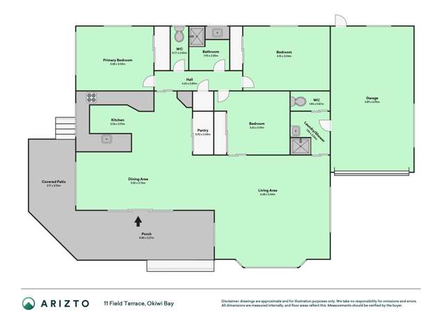
Floor Area
113m²
Land Area
883m²
About the area
Market insights
Insights for all bedroom homes in Okiwi Bay
Property type
All property types
Bedrooms
All
Time (yrs)
5 yrs
Home services
Fortnightly Repayments
Loan term
Total interest
Interest rate
Total cost
Press calculate to work out your mortgage repayments and how quickly you can pay off your loan.


On your side with these great benefits
Natural disaster cover for earthquakes, natural landslips, hydrothermal activity, tsunami, natural fires, & volcanic activity.
Temporary accommodation for you, your family, and your pets if you need to be evacuated from your home.
Get replacement keys and locks if yours get lost or stolen and pay no excess.
Access to AMI HomeHub, our first-class home repairer that brings together a team of experts to take care of your home claim repairs from start to finish.
Learn about these great benefits and more
*Exclusions and limitations apply. Talk to us about these or refer to the full policy document which can be found on our website.

Ōkiwi Bay, Marlborough
Okiwi Bay is a suburb which lies within the Territorial Authority of Marlborough, one of 36 residential suburbs which form the wider region. Okiwi Bay is the 21st largest suburb of Marlborough in terms of the total number of residential housing stock.
Okiwi Bay provides a range of housing stock, with the earliest residential housing recorded in the area constructed between 1900 - 1909. The majority of the residential housing stock in the locality was constructed between 2000 - 2009.
Residential housing stock in Okiwi Bay is made up of approximately 89% residential housing , 1% residential investment housing and 10% lifestyle properties.
Learn moreADVERTISEMENT

































