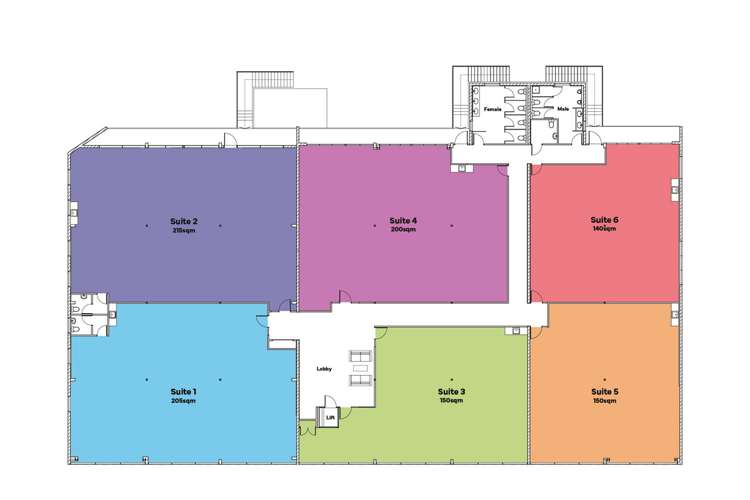
Located at 22A Scott Street, this premier office block will offer six modern office suites ranging from 140sqm (more or less) to 215sqm (more or less), ideal for professional businesses.
The ground floor offers a vibrant mix of retail, hospitality, and offices, boosting the building's commercial appeal.
Upstairs, renovations are underway to create high-quality, contemporary office suites, with the flexibility to combine or divide tenancies to meet your business requirements.
Main access is through a double-door entrance on Scott Street, leading to a spacious, modern foyer, with a lift planned for improved accessibility. Three secondary staircases are located at the rear of the building for access to dedicated parking off Tenth Lane.
Five dedicated car parks are available for lease, complemented by nearby on-street parking and the Kinross car park.
Shared male, female, and accessible bathrooms are located at the rear, with dedicated facilities in Suites 1 and 2.
Each tenancy will feature its own kitchenette, ensuring self-contained convenience.
Key features
• Flexible office suites from 140sqm (more or less) to 215sqm (more or less)
• Five dedicated car parks plus convenient on-street and Kinross parking
• Modern foyer with future lift access and dedicated suite amenities
For Lease by Negotiation
Available in twelve to eighteen months, depending on build and fit-out requirements
For more information or to view, contact the exclusive agents Zak Thorpe or Grant Thorpe