Establish your business in the heart of Blenheim's thriving CBD.
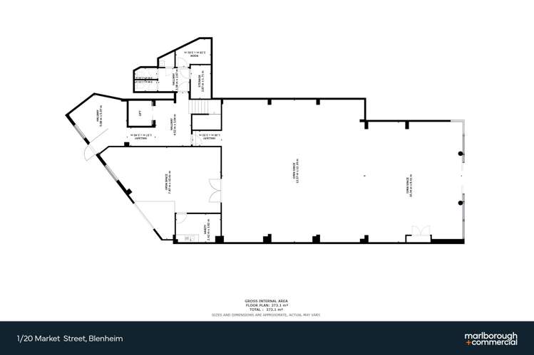
This 304sqm (more or less) ground-floor tenancy offers a spacious open-plan layout, complemented by a separate office and a generously sized stockroom to support retail or operational needs.
The premises shares approximately 43sqm of common area, including bathroom facilities, hallway access, and access to the rear laneway.
Equipped with two heat pumps, the space ensures year-round comfort for both staff and customers.
A modern electric front entrance enhances customer accessibility, while a rear roller door (2,700W x 3,000H) provides convenient stock handling and delivery access.
Ample customer parking is available on-street, with a multi-level public car park located directly behind the property for added convenience.
With a 67%NBS rating, this tenancy offers peace of mind alongside functionality.
Ideal for a wide range of retail or service-based businesses seeking a well-positioned, accessible, and professional premises.
Key Features
• 304sqm (more or less) of floor area including stockroom and office
• Dual access with electric front entrance and rear roller door
• Central CBD location with excellent parking options nearby
For lease $59,900
Available 01 February 2026
For more information or to view, contact the exclusive agents Zak Thorpe or Grant Thorpe