- 7 Exeter Crescent
Last sold: Dec 2002


+25
Pictures
Map
7 Exeter Crescent, Takaro, Palmerston North City
Last sold Dec 2002
Property insights
Rating valuation
OneRoof mentions
This property was last sold in 2002 for $80,050. Its latest rating valuation by Palmerston North City council is $570,000 as of 2024. There are 27 properties for sale nearby. More property estimates in Takaro are available.
Similar properties for sale
Property data
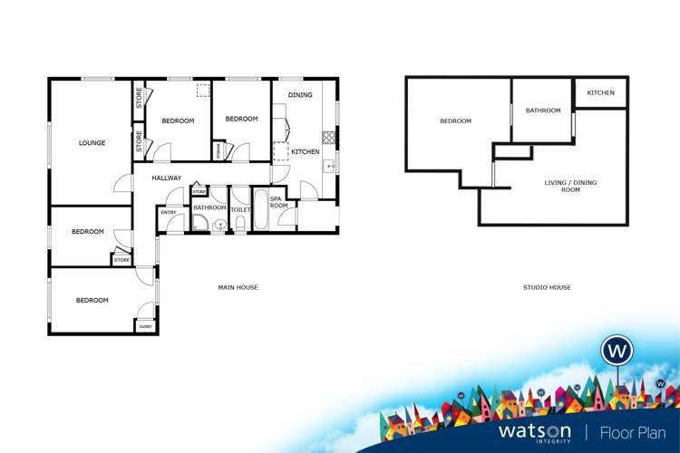
Floor Area
117m²
Land Area
833m²
Decade Built
1950s
Title
Freehold
ADVERTISEMENT
About the area
Market insights
Insights for all bedroom homes in Takaro
Property type
All property types
Bedrooms
All
Time (yrs)
5 yrs
Home services
Fortnightly Repayments
Loan term
Total interest
Interest rate
Total cost
Press calculate to work out your mortgage repayments and how quickly you can pay off your loan.


On your side with these great benefits
Natural disaster cover for earthquakes, natural landslips, hydrothermal activity, tsunami, natural fires, & volcanic activity.
Temporary accommodation for you, your family, and your pets if you need to be evacuated from your home.
Get replacement keys and locks if yours get lost or stolen and pay no excess.
Access to AMI HomeHub, our first-class home repairer that brings together a team of experts to take care of your home claim repairs from start to finish.
Learn about these great benefits and more
*Exclusions and limitations apply. Talk to us about these or refer to the full policy document which can be found on our website.

Takaro, Palmerston North City
Takaro is a suburb which lies within the Territorial Authority of Palmerston North, one of 23 residential suburbs which form the wider region. Takaro is the 8th largest suburb of Palmerston North in terms of the total number of residential housing stock.
Takaro provides a range of housing stock, with the earliest residential housing recorded in the area constructed between 1890 - 1899. The majority of the residential housing stock in the locality was constructed between 1950 - 1959.
Residential housing stock in Takaro is made up of approximately 95% residential housing and 5% residential investment housing properties.
Learn moreADVERTISEMENT






























