Colliers present to the market for lease this 530sqm commercial space at 88 Cuba Street in Palmerston North.
The property is centrally located, situated between Cook and Pitt Streets.
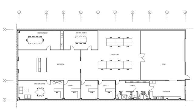
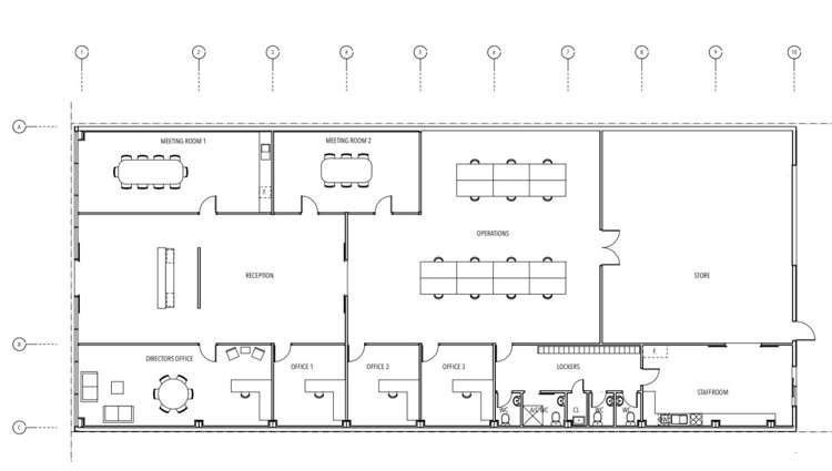
Due to be constructed, this building would suit office or retail usage and has a current configuration of reception, open plan areas, multiple offices, staffroom, boardroom and rear store however the landlord would alter to suit tenant requirements.
The site also has a rear area of 450sqm that could be used for car parking or yard.
Indicative construction completion date will be ten (10) months from the date of a signed lease agreement.
Call now for more information on this new development site.
(Note. Floor and land areas are approximate only).
Features:
* Floor area 530sqm (more or less)
* Centrally located
* Outer Business zoning