- 26 Arthur Street
Last sold: Mar 2021


+17
Pictures
Map
26 Arthur Street, Pahiatua, Tararua
Last sold Mar 2021
Property insights
OneRoof estimate
OneRoof mentions
This property was last sold in 2021 for $435,000. OneRoof now estimates this property to be $385,000 and its latest rating valuation by Tararua council is $360,000 as of 2023. There are 67 properties for sale nearby. More property estimates in Pahiatua are available.
Similar properties for sale
Property data
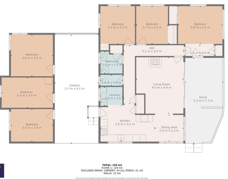
Floor Area
96m²
Land Area
1,012m²
Decade Built
1960s
Title
Freehold
ADVERTISEMENT
About the area
Market insights
Insights for all bedroom homes in Pahiatua
Property type
All property types
Bedrooms
All
Time (yrs)
5 yrs
Home services
Fortnightly Repayments
Loan term
Total interest
Interest rate
Total cost
Press calculate to work out your mortgage repayments and how quickly you can pay off your loan.


On your side with these great benefits
Natural disaster cover for earthquakes, natural landslips, hydrothermal activity, tsunami, natural fires, & volcanic activity.
Temporary accommodation for you, your family, and your pets if you need to be evacuated from your home.
Get replacement keys and locks if yours get lost or stolen and pay no excess.
Access to AMI HomeHub, our first-class home repairer that brings together a team of experts to take care of your home claim repairs from start to finish.
Learn about these great benefits and more
*Exclusions and limitations apply. Talk to us about these or refer to the full policy document which can be found on our website.

Pahiatua, Tararua
Pahiatua is a suburb which lies within the Territorial Authority of Tararua, one of 12 residential suburbs which form the wider region. Pahiatua is the 2nd largest suburb of Tararua in terms of the total number of residential housing stock.
Pahiatua provides a range of housing stock, with the earliest residential housing recorded in the area constructed between 1890 - 1899. The majority of the residential housing stock in the locality was constructed between 1950 - 1959.
Residential housing stock in Pahiatua is made up of approximately 79% residential housing , 2% residential investment housing and 19% lifestyle properties.
Learn moreADVERTISEMENT





















