- 938 State Highway 57

Floorplan

+30
Pictures30
Floorplan1
Map
Video & 3D tour1
Data
Property insights
OneRoof estimate
OneRoof mentions
Listed for sale on OneRoof for 59 days (last updated on 8 October) and was last sold in 2020 for $570,000. OneRoof now estimates this property to be $745,000 and its latest rating valuation by Horowhenua council is $920,000 as of 2022. There are 26 4-bedroom properties for sale nearby. There are 155 properties for sale in Koputaroa.
Similar properties for sale
Property data
Broadband available
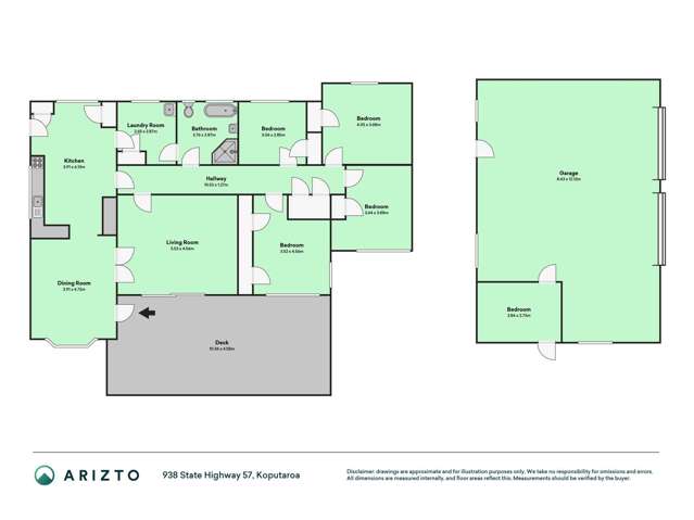
Floor area
151m²
Land area
3,690m²
Type of title
Freehold
About the area
Market insights
Insights for all bedroom homes in Koputaroa
Property type
All property types
Bedrooms
All
Time (yrs)
5 yrs
Home services
Fortnightly Repayments
Loan term
Total interest
Interest rate
Total cost
Press calculate to work out your mortgage repayments and how quickly you can pay off your loan.


On your side with these great benefits
Natural disaster cover for earthquakes, natural landslips, hydrothermal activity, tsunami, natural fires, & volcanic activity.
Temporary accommodation for you, your family, and your pets if you need to be evacuated from your home.
Get replacement keys and locks if yours get lost or stolen and pay no excess.
Access to AMI HomeHub, our first-class home repairer that brings together a team of experts to take care of your home claim repairs from start to finish.
Learn about these great benefits and more
*Exclusions and limitations apply. Talk to us about these or refer to the full policy document which can be found on our website.

Levin, Horowhenua
Levin is a suburb which lies within the Territorial Authority of Horowhenua, one of 13 residential suburbs which form the wider region. Levin is the largest suburb of Horowhenua in terms of the total number of residential housing stock.
Levin provides a range of housing stock, with the earliest residential housing recorded in the area constructed between 1880 - 1889. The majority of the residential housing stock in the locality was constructed between 1960 - 1969.
Residential housing stock in Levin is made up of approximately 91% residential housing , 2% residential investment housing and 8% lifestyle properties.
Learn moreADVERTISEMENT








































