- 1 Mathew Street

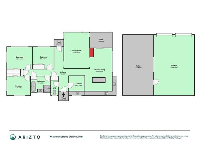
Floorplan

+33
Pictures33
Floorplan1
Map
Video & 3D tour1
Data
Property insights
OneRoof estimate
OneRoof mentions
Listed for sale on OneRoof for 191 days (last updated on 1 September) and was last sold in 2013 for $120,000. OneRoof now estimates this property to be $470,000 and its latest rating valuation by Tararua council is $370,000 as of 2023. There are 47 3-bedroom properties for sale nearby. There are 130 properties for sale in Dannevirke.
Similar properties for sale
Property data
On OneRoof
190 days
Property Type
House
Floor Area
119m²
Land Area
1,011m²
About the area
Market insights
Insights for all bedroom homes in Dannevirke
Property type
All property types
Bedrooms
All
Time (yrs)
5 yrs
Home services
Fortnightly Repayments
Loan term
Total interest
Interest rate
Total cost
Press calculate to work out your mortgage repayments and how quickly you can pay off your loan.


On your side with these great benefits
Natural disaster cover for earthquakes, natural landslips, hydrothermal activity, tsunami, natural fires, & volcanic activity.
Temporary accommodation for you, your family, and your pets if you need to be evacuated from your home.
Get replacement keys and locks if yours get lost or stolen and pay no excess.
Access to AMI HomeHub, our first-class home repairer that brings together a team of experts to take care of your home claim repairs from start to finish.
Learn about these great benefits and more
*Exclusions and limitations apply. Talk to us about these or refer to the full policy document which can be found on our website.

Dannevirke, Tararua
Dannevirke is a suburb which lies within the Territorial Authority of Tararua, one of 12 residential suburbs which form the wider region. Dannevirke is the largest suburb of Tararua in terms of the total number of residential housing stock.
Dannevirke provides a range of housing stock, with the earliest residential housing recorded in the area constructed between 1880 - 1889. The majority of the residential housing stock in the locality was constructed between 1950 - 1959.
Residential housing stock in Dannevirke is made up of approximately 81% residential housing , 1% residential investment housing and 17% lifestyle properties.
Learn moreADVERTISEMENT















































