Imagine waking up each morning to the soft rustle of palm leaves, the gentle call of birdsong, and the glimmer of the canal steps from your back patio. This exceptional freehold-titled property in Fiji's iconic Pacific Harbour (on the main island of Viti Levu) is more than just a home—it’s a lifestyle sanctuary where island living meets modern design and convenience.
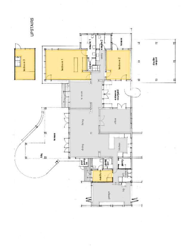
Set on a 3045 sqm waterfront flat, surveyed land block, this luxurious family-friendly residence is tailored for those who seek balance between leisure and livelihood. The spacious 4-bedroom, 2-bathroom home includes dedicated indoor and outdoor living areas, as well as flexible spaces ideal for a home office, prayer room, or kids' playroom—perfect for remote workers, international consultants, or successful entrepreneurs and digital nomads who host clients in a relaxed and inspiring environment. Also, a fabulous full or part-time retirement getaway, especially for water enthusiasts, yachties, anglers, and nature lovers.
Located just 250 meters from the main thoroughfare, Queens Road, in a premium residential enclave, this unique villa is nestled among stylish homes and lush gardens, with quick access to Pacific Harbour’s cafes, resort dining, cultural attractions, and vibrant arts scene. An exceptionally convenient place to call "home" if you are working in/near Fiji's capital city of Suva.
Step outside and you'll discover the entertainment-ready pool deck, quarry-tiled veranda, and a traditional bure-style jetty—perfect for winding down after work or welcoming guests in true Fijian style. A true "entertainer's paradise in the heart of the action!".
Property Highlights:
✓ Freehold title (no property taxes!)
✓ Land size: 3045 sqm (over three-quarters of an acre) | Home size: 325 sqm (approx.)
✓ 4 bedrooms, 3 bathrooms – Generously sized and naturally lit (with the "secret" loft)
✓ Designated home office which can easily become another bedroom, art studio, or kids play area
✓ Indoor/Outdoor entertainment area with PRIVATE boat launch -- minutes to Beqa Island and some of Fiji's world-famous fishing, diving and underwater activities and adventures (like the eye-popping shark diving!)
✓ Family friendly with easy access for kayaks (included in sale!) and stand up paddleboarding and fishing!
✓ ROOM FOR EXPANSION & FUTURE REVENUE POTENTIAL with approved additional adjacent villa plans ready!
✓ TV room, walk-in pantry, back-of-house kitchen, self-contained maid’s quarters, workshop
✓ Walking distance to beach, resorts, golf course, shops, and cultural attractions
Timeless Touches & Practical Features:
✓ Home Office Potential: Convert a bedroom or lounge into a client-friendly workspace with canal views and private access.
✓ Jetty with Bure Canopy: Host quiet meetings by the water or enjoy an evening glass of wine under a thatched roof.
✓ Rear Veranda: The perfect space for coffee-fueled mornings, remote Zoom calls, or relaxed outdoor gatherings.
✓ Secure Fencing: Offering privacy while surrounded by lush tropical hedging.
✓ Custom stucco, covered carport & entrance courtyard: Functional additions that ensure comfort, convenience, and low-maintenance living.
✓ BIG FUTURE EXPANSION AND/OR ADDITIONAL INCOME POTENTIAL: with potential of subdividing the existing block, with room to build a NEW MODERN 2-bedroom concept-design villa with Engineer’s Certificate (A perfect for Airbnb rental and/or Guest Villa for family and friends.)
Price: $2,800,000.00 (+Value Added Tax, if applicable)
SPECIAL INCENTIVE BONUS!
Add a maritime touch to your daily routine with the optional 23ft Silverwaters fiberglass boat, powered by a 60HP Mercury engine. Well-maintained, MSAF registered, and equipped with GPS—included with the sale of the property!
Whether you’re building your dream business remotely or simply craving a peaceful escape with room to grow, this Pacific Harbour property invites you to embrace the best of both worlds—island serenity and modern functionality.
Come home to where work-life balance isn't a dream—it’s your new reality.
Find out more!
Contact Us at +679.675.1167 or [email protected] and also by visiting our main website, ProfessionalsFIJI.com and Follow Us on social media: Facebook, LinkedIn, YouTube (Professionals FIJI Real Estate) and Instagram (@fijirealestate)