- Lot 83 Mutton Town Road

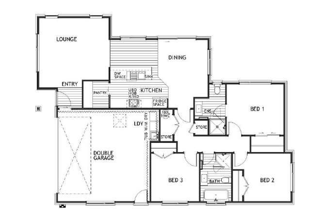
Floorplan

+10
Pictures10
Floorplan1
Map
Data
Property insights
OneRoof estimate
Interested in ?
Find estimateOneRoof mentions
Listed for sale on OneRoof for 188 days (last updated on 23 June). There are 12680 3-bedroom properties for sale nearby. There are 39148 properties for sale in Sunderland Park.
Home services
Fortnightly Repayments
Loan term
Total interest
Interest rate
Total cost
Press calculate to work out your mortgage repayments and how quickly you can pay off your loan.


On your side with these great benefits
Natural disaster cover for earthquakes, natural landslips, hydrothermal activity, tsunami, natural fires, & volcanic activity.
Temporary accommodation for you, your family, and your pets if you need to be evacuated from your home.
Get replacement keys and locks if yours get lost or stolen and pay no excess.
Access to AMI HomeHub, our first-class home repairer that brings together a team of experts to take care of your home claim repairs from start to finish.
Learn about these great benefits and more
*Exclusions and limitations apply. Talk to us about these or refer to the full policy document which can be found on our website.












