- 2821 Luggate - Cromwell Road
Last sold: Dec 2021


+25
Pictures
Map
2821 Luggate - Cromwell Road, Queensberry, Central Otago
Last sold Dec 2021
Property insights
OneRoof estimate
OneRoof mentions
This property was last sold in 2021. OneRoof now estimates this property to be $860,000 and its latest rating valuation by Central Otago council is $860,000 as of 2025. There are 11 properties for sale nearby. More property estimates in Queensberry are available.
Property data
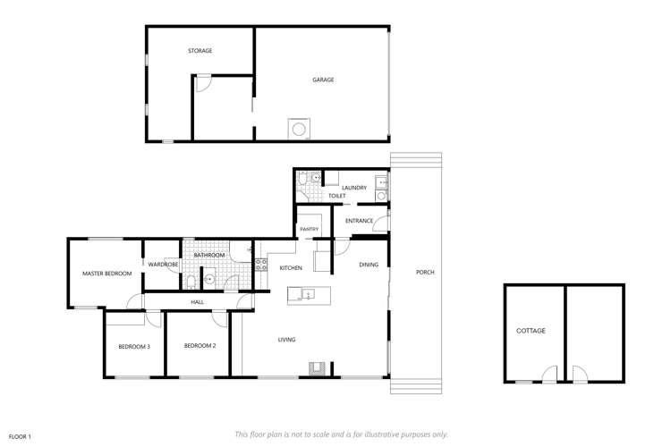
Floor Area
110m²
Land Area
4,855m²
Decade Built
1950s
Title
Freehold
ADVERTISEMENT
About the area
Market insights
Insights for all bedroom homes in Queensberry
Property type
All property types
Bedrooms
All
Time (yrs)
5 yrs
Home services
Fortnightly Repayments
Loan term
Total interest
Interest rate
Total cost
Press calculate to work out your mortgage repayments and how quickly you can pay off your loan.


On your side with these great benefits
Natural disaster cover for earthquakes, natural landslips, hydrothermal activity, tsunami, natural fires, & volcanic activity.
Temporary accommodation for you, your family, and your pets if you need to be evacuated from your home.
Get replacement keys and locks if yours get lost or stolen and pay no excess.
Access to AMI HomeHub, our first-class home repairer that brings together a team of experts to take care of your home claim repairs from start to finish.
Learn about these great benefits and more
*Exclusions and limitations apply. Talk to us about these or refer to the full policy document which can be found on our website.

Queensberry, Central Otago
Queensberry is a suburb which lies within the Territorial Authority of Otago, one of 23 residential suburbs which form the wider region. Queensberry is the 9th largest suburb of Otago in terms of the total number of residential housing stock.
Queensberry provides a range of housing stock, with the earliest residential housing recorded in the area constructed between 1880 - 1889. The majority of the residential housing stock in the locality was constructed between 2010 - 2019.
Residential housing stock in Queensberry is made up of approximately 3% residential housing , 1% residential investment housing and 97% lifestyle properties.
Learn moreADVERTISEMENT



























