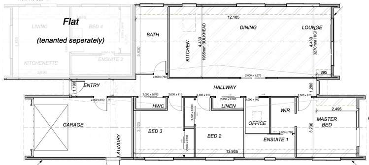
Situated on the border of Jacks Point, this stunning brand-new home offers a perfect blend of modern living and natural beauty. Featuring three spacious bedrooms and two contemporary bathrooms, it provides plenty of room for comfort and relaxation. The thoughtfully designed layout includes built-in wardrobes and a separate study or home office.
There is a ducted heat pump system, ensuring convenience and a pleasant living environment throughout the year. Tiled bathrooms with underfloor heating offer a luxurious feel. An internally accessed single garage allows for a vehicle or additional storage.
Enjoy outdoor living with a courtyard and low-maintenance section, perfect for soaking up the fresh mountain air and stunning views. Conveniently positioned, the property offers easy access to a range of shops and cafés. Within walking distance are tennis courts, pharmacy, medical centre, early childhood centre, and primary school.
Jacks Point is renowned for its stunning landscapes and outdoor lifestyle, with a world class golf course and ski field right at your doorstep. The community is family-friendly and offers a welcoming atmosphere, making it an ideal place to settle down.
Attached to the property is a flat that is tenanted separately. The driveway is shared. This property is offered unfurnished for long-term tenants, with a minimum tenancy of one year. No Subletting allowed.
This house is currently under construction and due for completion mid May.
Features: Heating, Courtyard, Built-in wardrobe, Air conditioning, New build, Healthy Homes compliant
TENANTS: To apply or schedule a viewing please click the email button to contact the landlord directly.
LANDLORDS: myRent.co.nz provides a cheaper solution to get your property in front of more potential tenants. We also offer property management for just $20/month.