- 9 Stewart Street
Last sold: Jan 2001


+42
Pictures
Map
9 Stewart Street, Frankton, Queenstown
Last sold Jan 2001
Property insights
OneRoof estimate
OneRoof mentions
This property was last sold in 2001 for $395,000. OneRoof now estimates this property to be $3,470,000 and its latest rating valuation by Queenstown council is $3,550,000 as of 2024. There are 45 properties for sale nearby. More property estimates in Frankton are available.
Similar properties for sale
Property data
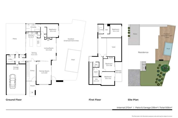
Floor Area
352m²
Land Area
585m²
Decade Built
2010s
Title
Freehold
ADVERTISEMENT
About the area
Market insights
Insights for all bedroom homes in Frankton
Property type
All property types
Bedrooms
All
Time (yrs)
5 yrs
Home services
Fortnightly Repayments
Loan term
Total interest
Interest rate
Total cost
Press calculate to work out your mortgage repayments and how quickly you can pay off your loan.


On your side with these great benefits
Natural disaster cover for earthquakes, natural landslips, hydrothermal activity, tsunami, natural fires, & volcanic activity.
Temporary accommodation for you, your family, and your pets if you need to be evacuated from your home.
Get replacement keys and locks if yours get lost or stolen and pay no excess.
Access to AMI HomeHub, our first-class home repairer that brings together a team of experts to take care of your home claim repairs from start to finish.
Learn about these great benefits and more
*Exclusions and limitations apply. Talk to us about these or refer to the full policy document which can be found on our website.

Frankton, Queenstown
Frankton is a suburb which lies within the Territorial Authority of Queenstown, one of 24 residential suburbs which form the wider region. Frankton is the 6th largest suburb of Queenstown in terms of the total number of residential housing stock.
Frankton provides a range of housing stock, with the earliest residential housing recorded in the area constructed between 1910 - 1919. The majority of the residential housing stock in the locality was constructed between 1990 - 1999.
Residential housing stock in Frankton is made up of approximately 93% residential housing , 6% residential investment housing and 1% lifestyle properties.
Learn moreADVERTISEMENT














































