- 16 Wooing Tree Avenue

Floorplan

+27
Pictures27
Floorplan1
Map
Video & 3D tour1
Data
Property insights
OneRoof estimate
OneRoof mentions
Listed for sale on OneRoof for 90 days (last updated on 6 November) and was last sold in 2022 for $265,217. OneRoof now estimates this property to be $1,050,000 and its latest rating valuation by Central Otago council is $840,000 as of 2022. This property has appeared in 6562 searches in the last 30 days. There are 37 3-bedroom properties for sale nearby. There are 176 properties for sale in Cromwell.
Similar properties for sale
Property data
Time On OneRoof
89 days
Type of title
Freehold
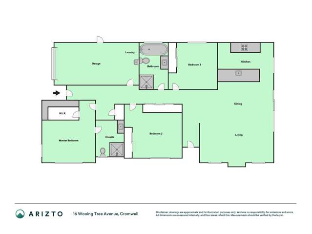
Floor area
141m²
Land area
331m²
About the area
Market insights
Insights for all bedroom homes in Cromwell
Property type
All property types
Bedrooms
All
Time (yrs)
5 yrs
Home services
Fortnightly Repayments
Loan term
Total interest
Interest rate
Total cost
Press calculate to work out your mortgage repayments and how quickly you can pay off your loan.


On your side with these great benefits
Natural disaster cover for earthquakes, natural landslips, hydrothermal activity, tsunami, natural fires, & volcanic activity.
Temporary accommodation for you, your family, and your pets if you need to be evacuated from your home.
Get replacement keys and locks if yours get lost or stolen and pay no excess.
Access to AMI HomeHub, our first-class home repairer that brings together a team of experts to take care of your home claim repairs from start to finish.
Learn about these great benefits and more
*Exclusions and limitations apply. Talk to us about these or refer to the full policy document which can be found on our website.

Cromwell, Central Otago
Cromwell is a suburb which lies within the Territorial Authority of Otago, one of 23 residential suburbs which form the wider region. Cromwell is the 2nd largest suburb of Otago in terms of the total number of residential housing stock.
Cromwell provides a range of housing stock, with the earliest residential housing recorded in the area constructed between 1880 - 1889. The majority of the residential housing stock in the locality was constructed between 2000 - 2009.
Residential housing stock in Cromwell is made up of approximately 90% residential housing , 1% residential investment housing and 9% lifestyle properties.
Learn moreADVERTISEMENT








































