- 1/30 Bullendale Drive
Recently sold
Sale price: $900,000


+16
Pictures
Map
1/30 Bullendale Drive, Arthurs Point, Queenstown
Sold for $900,000
Property insights
Rating valuation
OneRoof mentions
This property was last sold in 2026 for $900,000. Its latest rating valuation by Queenstown council is $850,000 as of 2024. There are 11 properties for sale nearby. More property estimates in Arthurs Point are available.
Similar properties for sale
Property data
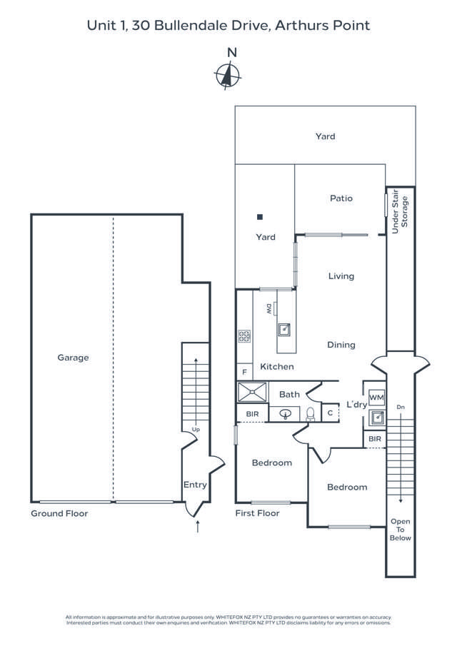
Floor Area
110m²
Decade Built
2020s
Title
Unit Title
Deck
Included
ADVERTISEMENT
Get a free, no obligation appraisal from our top agents today
About the area
Market insights
Insights for all bedroom homes in Arthurs Point
Property type
All property types
Bedrooms
All
Time (yrs)
5 yrs
Home services
Fortnightly Repayments
Loan term
Total interest
Interest rate
Total cost
Press calculate to work out your mortgage repayments and how quickly you can pay off your loan.


On your side with these great benefits
Natural disaster cover for earthquakes, natural landslips, hydrothermal activity, tsunami, natural fires, & volcanic activity.
Temporary accommodation for you, your family, and your pets if you need to be evacuated from your home.
Get replacement keys and locks if yours get lost or stolen and pay no excess.
Access to AMI HomeHub, our first-class home repairer that brings together a team of experts to take care of your home claim repairs from start to finish.
Learn about these great benefits and more
*Exclusions and limitations apply. Talk to us about these or refer to the full policy document which can be found on our website.

Arthurs Point, Queenstown
Arthurs Point is a suburb which lies within the Territorial Authority of Queenstown, one of 24 residential suburbs which form the wider region. Arthurs Point is the 12nd largest suburb of Queenstown in terms of the total number of residential housing stock.
Arthurs Point provides a range of housing stock, with the earliest residential housing recorded in the area constructed between 1930 - 1939. The majority of the residential housing stock in the locality was constructed between 2000 - 2009.
Residential housing stock in Arthurs Point is made up of approximately 89% residential housing , 4% residential investment housing and 6% lifestyle properties.
Learn moreADVERTISEMENT



















