- 27 Ward Street


+20
Pictures20
Map
Video & 3D tour1
Data
Property insights
OneRoof estimate
OneRoof mentions
Listed for sale on OneRoof for 130 days (last updated on 30 July) and was last sold in 2024 for $445,000. OneRoof now estimates this property to be $435,000 and its latest rating valuation by Ruapehu council is $420,000 as of 2023. There are 17 4-bedroom properties for sale nearby. There are 84 properties for sale in Taumarunui.
Similar properties for sale
Property data
Broadband available
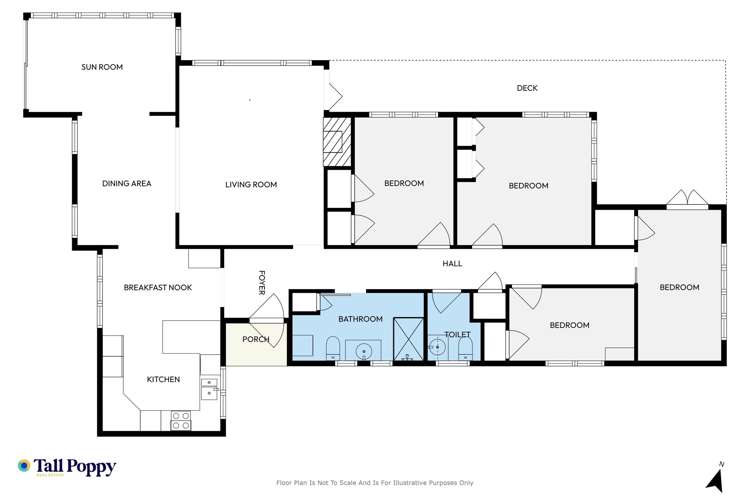
Floor area
150m²
Land area
2,157m²
Type of title
Freehold
About the area
Market insights
Insights for all bedroom homes in Taumarunui
Property type
All property types
Bedrooms
All
Time (yrs)
5 yrs
Home services
Fortnightly Repayments
Loan term
Total interest
Interest rate
Total cost
Press calculate to work out your mortgage repayments and how quickly you can pay off your loan.


On your side with these great benefits
Natural disaster cover for earthquakes, natural landslips, hydrothermal activity, tsunami, natural fires, & volcanic activity.
Temporary accommodation for you, your family, and your pets if you need to be evacuated from your home.
Get replacement keys and locks if yours get lost or stolen and pay no excess.
Access to AMI HomeHub, our first-class home repairer that brings together a team of experts to take care of your home claim repairs from start to finish.
Learn about these great benefits and more
*Exclusions and limitations apply. Talk to us about these or refer to the full policy document which can be found on our website.

Taumarunui, Ruapehu
Taumarunui is a suburb which lies within the Territorial Authority of Ruapehu, one of 13 residential suburbs which form the wider region. Taumarunui is the largest suburb of Ruapehu in terms of the total number of residential housing stock.
Taumarunui provides a range of housing stock, with the earliest residential housing recorded in the area constructed between 1880 - 1889. The majority of the residential housing stock in the locality was constructed between 1960 - 1969.
Residential housing stock in Taumarunui is made up of approximately 88% residential housing , 2% residential investment housing and 9% lifestyle properties.
Learn moreADVERTISEMENT

































