- 139 Miro Street
Recently sold
Sale price: $355,000


+20
Pictures
Map
139 Miro Street, Manunui, Ruapehu
Sold for $355,000
Property insights
OneRoof estimate
OneRoof mentions
This property was last sold in 2026 for $355,000. OneRoof now estimates this property to be $280,000 and its latest rating valuation by Ruapehu council is $280,000 as of 2023. There are 2 properties for sale nearby. More property estimates in Manunui are available.
Property data
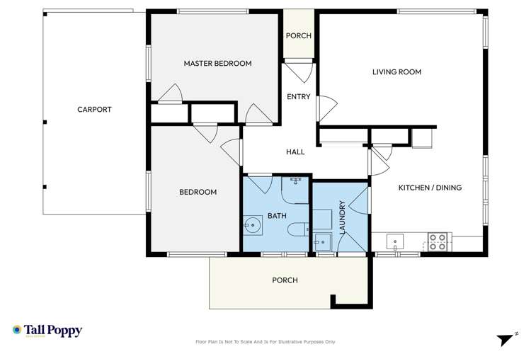
Floor Area
83m²
Land Area
799m²
Decade Built
1950s
Title
Freehold
ADVERTISEMENT
About the area
Market insights
Insights for all bedroom homes in Manunui
Property type
All property types
Bedrooms
All
Time (yrs)
5 yrs
Home services
Fortnightly Repayments
Loan term
Total interest
Interest rate
Total cost
Press calculate to work out your mortgage repayments and how quickly you can pay off your loan.


On your side with these great benefits
Natural disaster cover for earthquakes, natural landslips, hydrothermal activity, tsunami, natural fires, & volcanic activity.
Temporary accommodation for you, your family, and your pets if you need to be evacuated from your home.
Get replacement keys and locks if yours get lost or stolen and pay no excess.
Access to AMI HomeHub, our first-class home repairer that brings together a team of experts to take care of your home claim repairs from start to finish.
Learn about these great benefits and more
*Exclusions and limitations apply. Talk to us about these or refer to the full policy document which can be found on our website.

Manunui, Ruapehu
Manunui is a suburb which lies within the Territorial Authority of Ruapehu, one of 13 residential suburbs which form the wider region. Manunui is the 4th largest suburb of Ruapehu in terms of the total number of residential housing stock.
Manunui provides a range of housing stock, with the earliest residential housing recorded in the area constructed between 1900 - 1909. The majority of the residential housing stock in the locality was constructed between 1950 - 1959.
Residential housing stock in Manunui is made up of approximately 80% residential housing , 1% residential investment housing and 19% lifestyle properties.
Learn moreADVERTISEMENT






















