- 5/167 Innes Road


+9
Pictures9
Map
Video & 3D tour1
Data
Property data
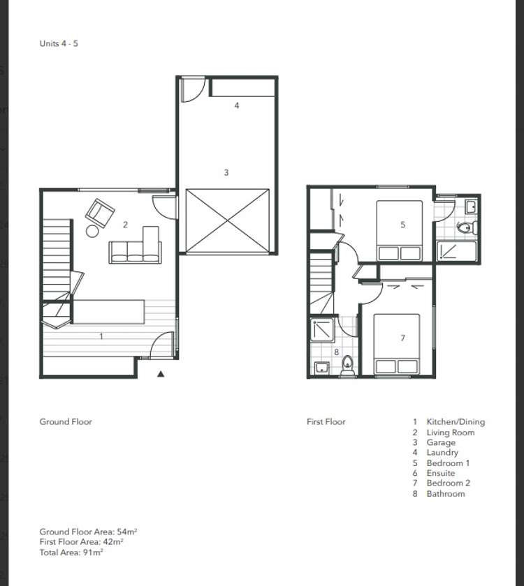
Floor Area
96m²
Property Type
Townhouse
Land Area
131m²
Decade Built
2020s
About the area

Saint Albans, Christchurch City
Saint Albans is a suburb which lies within the Territorial Authority of Christchurch, one of 116 residential suburbs which form the wider region. Saint Albans is the 2nd largest suburb of Christchurch in terms of the total number of residential housing stock.
Saint Albans provides a range of housing stock, with the earliest residential housing recorded in the area constructed between 1880 - 1889. The majority of the residential housing stock in the locality was constructed between 1970 - 1979.
Residential housing stock in Saint Albans is made up of approximately 97% residential housing and 3% residential investment housing properties.
Learn moreADVERTISEMENT
Similar properties for rent






















