House & Land Package by Stroud Homes Christchurch South
SITE COSTS
All-Inclusive Peace of Mind - CONSTRUCTION TO START SOON!
At Stroud Homes Christchurch South, we believe in transparency and simplicity. That’s why our land and home packages are all-inclusive when it comes to site costs.
What Does That Mean for You?
No Hidden Costs: All standard site works, including earthworks, retaining (if needed), and basic landscaping are included in your package price.
Landscaping Included: Your home will come with front-yard landscaping allowances, so you can move in and enjoy a finished look from day one.
No Last-Minute Surprises: We handle all the standard site preparation and service connections as part of the package, giving you confidence in your total cost.
You’ll know exactly what’s included, and you can trust that your new home will be ready to enjoy without unexpected extras.
INCLUSIONS
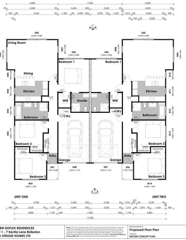
✔ Smart Duplex Layout
Ideal for investors, extended families, or owner-occupiers
Shared wall only through garage and service areas for improved privacy
✔ Three Bedrooms per Dwelling
Spacious master bedroom with walk-in wardrobe and ensuite
Two additional double bedrooms with built-in wardrobes
Family-friendly and rental-ready configuration
✔ Open-Plan Living
Light-filled kitchen, dining, and living areas
Practical flow to outdoor living
Designed for modern lifestyles and easy entertaining
✔ Contemporary Kitchens
Central island bench with seating
Efficient work triangle and generous storage
Positioned to overlook living and dining spaces
✔ Two Bathrooms + Laundry
Main bathroom with bath and shower
Ensuite off master bedroom
Separate internal laundry for everyday convenience
✔ Internal Access Garage
Single internal garage per unit
Secure access directly into the home
Additional off-street parking available
ABOUT THE HOME
Strong Investment Appeal
Excellent tenant separation and privacy
Designed to meet modern rental demand
Low-Maintenance Living
Compact, efficient footprint
Easy-care layout perfect for busy professionals or downsizers
Privacy & Comfort
Bedrooms positioned away from living zones
Bathrooms and storage buffers between dwellings
Reduced noise transfer compared to traditional duplexes
Future-Proof Design
Suitable for families, couples, or ageing in place
ABOUT ARBOR GREEN
Whether you're a growing family, downsizer, or up-and-comer, there's a place for you in Arbor Green. Filled with the conveniences you need, the comfort you want, and the community you've always wished for. Whatever home means to you, it's waiting for you in Arbor Green.
ABOUT ROLLESTON
Why You’ll Love Living in Rolleston
Rolleston has quickly become one of Canterbury’s most desirable places to live, offering the perfect balance of modern convenience, family-friendly living, and easy access to Christchurch.
Just a short commute to the city, Rolleston delivers a relaxed, community-focused lifestyle without sacrificing amenities. Residents enjoy excellent schools, childcare centres, supermarkets, cafés, and medical facilities, all within minutes of home — making everyday life simple and stress-free.
Renowned for its parks, walkways, and recreational spaces, Rolleston is ideal for families, professionals, and retirees alike. From weekend sports and playgrounds to cycling paths and green reserves, the area is designed to support an active, outdoor lifestyle.
With ongoing growth, strong infrastructure investment, and a reputation for quality housing, Rolleston continues to attract homeowners and investors seeking long-term value in a thriving, well-planned township.
ABOUT KENTON ROSS, Sales Consultant, Stroud Homes Christchurch South
Kenton brings a wealth of knowledge to the building industry, having cultivated experience as a builder and project manager. He is deeply passionate about the opportunity to create new homes for clients, who often become valued friends throughout the process. Kenton places significant emphasis on understanding and addressing each client's unique needs and desires, ensuring that their vision is brought to life in their new home.
Kenton regards supporting clients on their new build journey as a true honour, fostering a collaborative and respectful relationship throughout the endeavor.
ABOUT STROUD HOMES
With more than 20 years of design and building experience, Stroud Homes has a proven track record of success and a strong reputation for exceptional service and superior quality. The man behind the locally owned brand is James Stroud. Stroud Homes has a great reputation as an award-winning builder. We can provide simple and cost-effective advice, from our designs or yours. How do we do it?
1. Unbeatable buying power via excellent supplier relationships
2. Commitment to continuous improvement to customer service and quality
3. Pre-pricing new homes on vacant land
Stroud Homes care about our customers and we do what we say we’re going to do. We take the time to listen and work alongside our customers every step of the way, so the end result feels just right,like home.
PLEASE NOTE
House & Land Pricing as per Stroud Fully Loaded Inclusions. See our website for House & Land Package Terms & Conditions