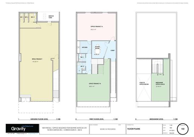
Position your business in this sleek, modern office space located on the bustling Riccarton Road. Offering approximately 66m2 of professional office space (including its share of common amenities), this tenancy features a bright, open-plan layout. Shared amenities include a well-appointed boardroom, kitchen, lobby, and toilet facilities - enhancing convenience for staff and clients alike.
Key Features
• 66m2 (approx) total area (including share of common area)
• Opportunities for Billboard Advertising on the busy Riccarton Road
• Available now.
$24,500 + OPEX + GST
*Floor areas are estimated and have not been independently verified. Tenants must make their own enquiries and seek expert advice.
Contact the agents Zac Collington (021 154 4836) or Paul Middleditch (027 276 7047) for full details.