- 3 Eliza Way


+41
Pictures41
Map
Data
Property insights
OneRoof estimate
OneRoof mentions
Listed for sale on OneRoof for 2 days (last updated on 22 April) and was last sold in 2022 for $260,000. OneRoof now estimates this property to be $735,000 and its latest rating valuation by Ashburton council is $690,000 as of 2024. There are 5 4-bedroom properties for sale nearby. There are 23 properties for sale in Rakaia.
Similar properties for sale
Property data
On OneRoof
1 days
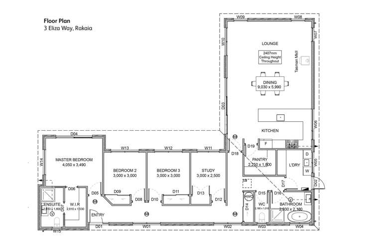
Property Type
House
Floor Area
162m²
Land Area
1,102m²
About the area
Market insights
Insights for all bedroom homes in Rakaia
Property type
All property types
Bedrooms
All
Time (yrs)
5 yrs
Home services
Fortnightly Repayments
Loan term
Total interest
Interest rate
Total cost
Press calculate to work out your mortgage repayments and how quickly you can pay off your loan.


On your side with these great benefits
Natural disaster cover for earthquakes, natural landslips, hydrothermal activity, tsunami, natural fires, & volcanic activity.
Temporary accommodation for you, your family, and your pets if you need to be evacuated from your home.
Get replacement keys and locks if yours get lost or stolen and pay no excess.
Access to AMI HomeHub, our first-class home repairer that brings together a team of experts to take care of your home claim repairs from start to finish.
Learn about these great benefits and more
*Exclusions and limitations apply. Talk to us about these or refer to the full policy document which can be found on our website.

Rakaia, Ashburton
Rakaia is a suburb which lies within the Territorial Authority of Ashburton, one of 21 residential suburbs which form the wider region. Rakaia is the 7th largest suburb of Ashburton in terms of the total number of residential housing stock.
Rakaia provides a range of housing stock, with the earliest residential housing recorded in the area constructed between 1880 - 1889. The majority of the residential housing stock in the locality was constructed between 2000 - 2009.
Residential housing stock in Rakaia is made up of approximately 77% residential housing , 1% residential investment housing and 22% lifestyle properties.
Learn moreADVERTISEMENT























































