- 25 Crosby Street

Floorplan

+25
Pictures25
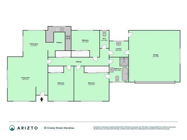
Floorplan1
Map
Video & 3D tour1
Data
Property insights
OneRoof estimate
OneRoof mentions
Listed for sale on OneRoof for 5 days (last updated on 24 March). OneRoof now estimates this property to be $640,000 and its latest rating valuation by Christchurch City council is $620,000 as of 2022. There are 9 3-bedroom properties for sale nearby. There are 21 properties for sale in Mairehau.
Similar properties for sale
Property data
On OneRoof
4 days
Property Type
House
Floor Area
125m²
Land Area
341m²
About the area
Market insights
Insights for all bedroom homes in Mairehau
Property type
All property types
Bedrooms
All
Time (yrs)
5 yrs
Home services
Fortnightly Repayments
Loan term
Total interest
Interest rate
Total cost
Press calculate to work out your mortgage repayments and how quickly you can pay off your loan.


On your side with these great benefits
Natural disaster cover for earthquakes, natural landslips, hydrothermal activity, tsunami, natural fires, & volcanic activity.
Temporary accommodation for you, your family, and your pets if you need to be evacuated from your home.
Get replacement keys and locks if yours get lost or stolen and pay no excess.
Access to AMI HomeHub, our first-class home repairer that brings together a team of experts to take care of your home claim repairs from start to finish.
Learn about these great benefits and more
*Exclusions and limitations apply. Talk to us about these or refer to the full policy document which can be found on our website.

Mairehau, Christchurch City
Mairehau is a suburb which lies within the Territorial Authority of Christchurch, one of 116 residential suburbs which form the wider region. Mairehau is the 13rd largest suburb of Christchurch in terms of the total number of residential housing stock.
Mairehau provides a range of housing stock, with the earliest residential housing recorded in the area constructed between 1900 - 1909. The majority of the residential housing stock in the locality was constructed between 1950 - 1959.
Residential housing stock in Mairehau is made up of approximately 98% residential housing , 1% residential investment housing and 1% lifestyle properties.
Learn moreADVERTISEMENT































